Accessories PNEG-1839 User Manual
Manuals
Brands
Grain Systems Manuals
Equipment
Bin
17
18
19
20
21
22
23
24
25
26
Table Of Contents
Contents
1. Safety
2. Decals
3. 60' High Wind Roof Instructions
4. Warranty
3. 60' High Wind Roof Instructions
PNEG-1839
60' High Wind Ro
of Assembly
23
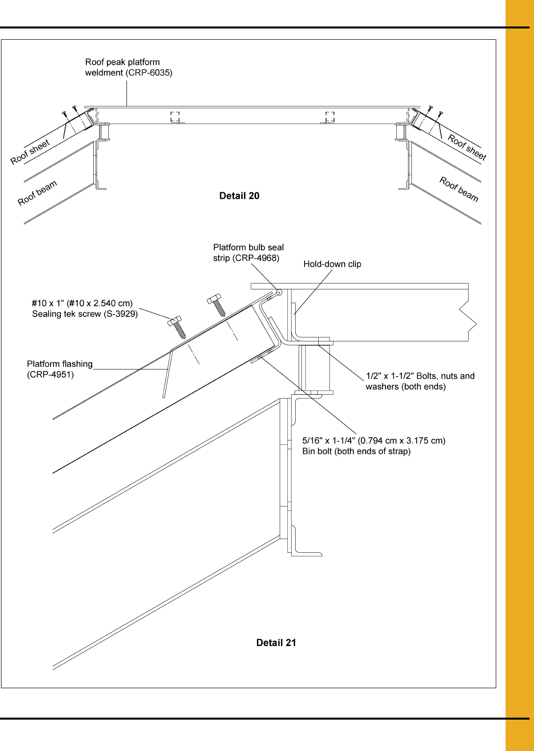
Figure 3M
1
...
...
21
22
23
24
25
...
26