Accessories PNEG-1839 User Manual
Manuals
Brands
Grain Systems Manuals
Equipment
Bin
11
12
13
14
15
16
17
18
19
20
Table Of Contents
Contents
1. Safety
2. Decals
3. 60' High Wind Roof Instructions
4. Warranty
3. 60' High Wind Roof Instructions
12
PNEG-1839
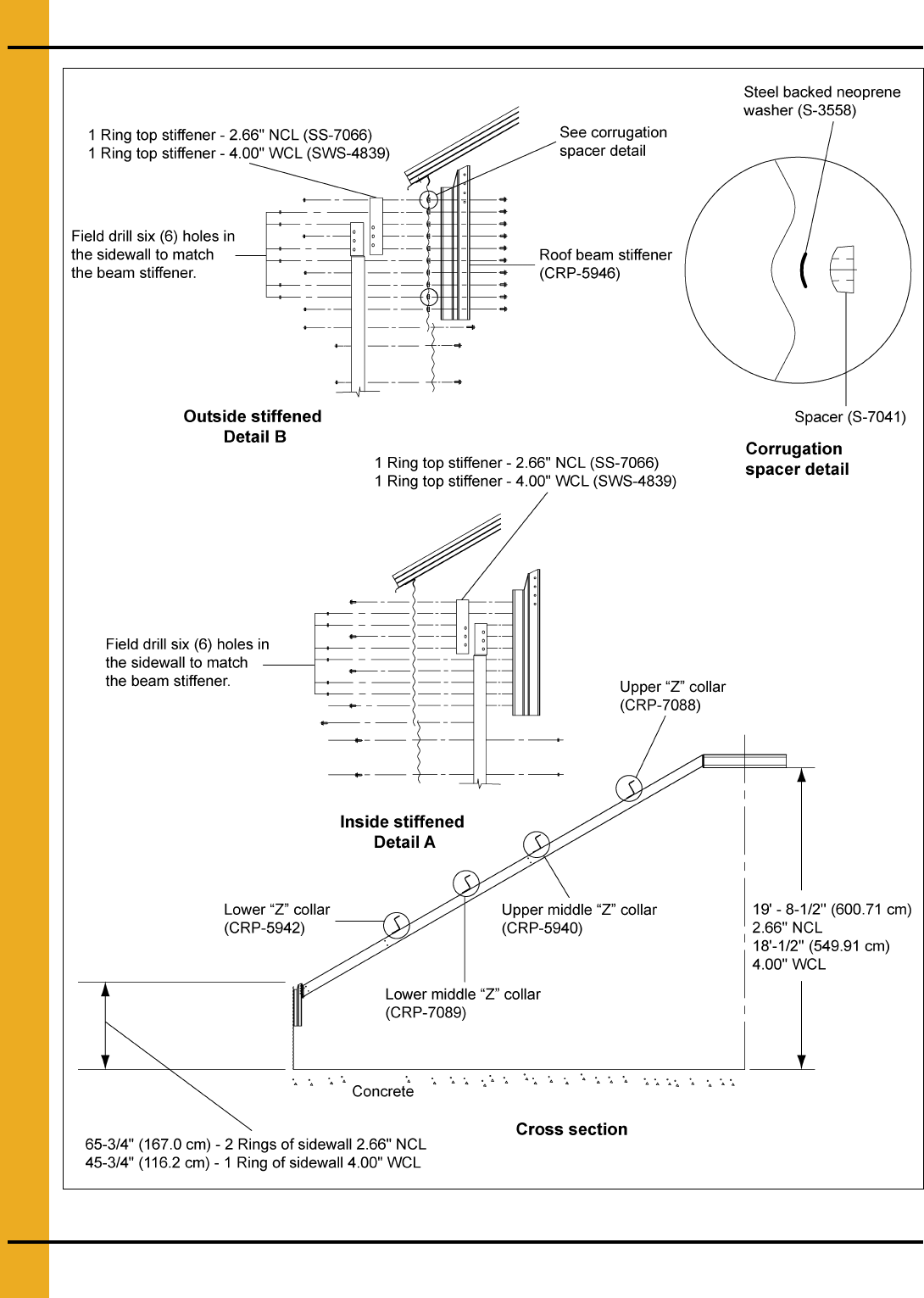
60' High Wind Roof Assembly
Figure 3B
1
...
...
10
11
12
13
14
...
...
26