Accessories PNEG-1789 Owner's manual
Manuals
Brands
Grain Systems Manuals
Equipment
Bin
1
2
3
4
5
6
7
Table Of Contents
Special 36' Diameter High Wind Roof Rafter Instructions
Page 4 of 7
PNEG-1789
Special 36' Diameter High W
ind Roof Raf
ter Instructions
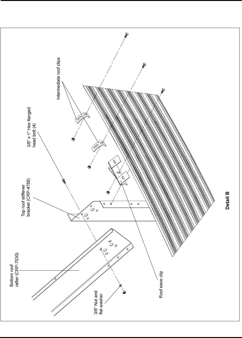
Special Rafter Instructions for 36' Diameter High Wind
Roof (Continued)
Figure 4
Raf
ter to S
tiffener Connection
1
...
2
3
4
5
6
...
7