Accessories PNEG-1789 Owner's manual
Manuals
Brands
Grain Systems Manuals
Equipment
Bin
1
2
3
4
5
6
7
Table Of Contents
Special 36' Diameter High Wind Roof Rafter Instructions
PNEG-1789
Page 3 of 7
S
pecial 36' Diameter High Wi
nd Roof Raf
ter
Instructions
Special Rafter Instructions
for 36' Diameter High Wind
Roof (Continued)
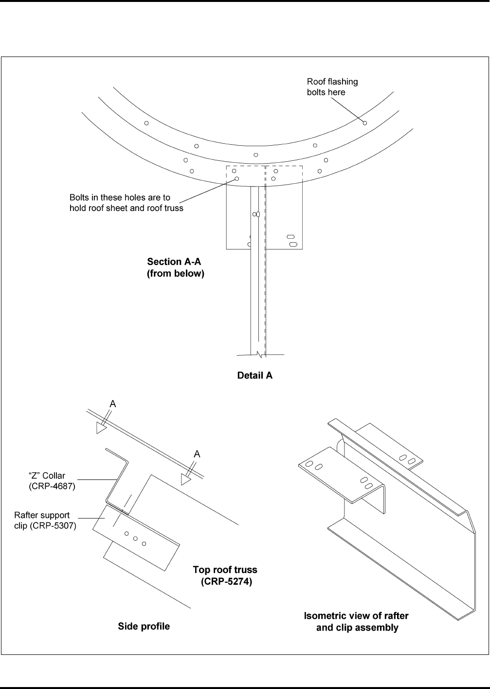
Figure 3
Raf
ter to āZā Collar Connection
1
2
3
4
5
6
...
7