Accessories PNEG-1789 Owner's manual
Table Of Contents

Date: 01-25-11 PNEG-1789
Owner’s Manual
1004 East Illinois Street • Assumption, IL 62510 • 1-217-226-4421
PNEG-1789
Page 1 of 7
Printed in the U.S.A.
Copyright © 2011 by GSI Group
www.gsiag.com
Special 36' Diameter High Wind
Roof Rafter Instructions
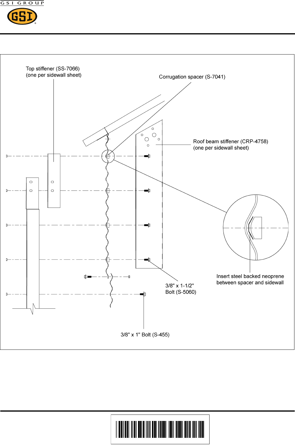
Roof Stiffener Detail 2.66'' Corrugation Outside Stiffener Only
Figure 1
NOTE: Insert corrugation spacer (S-7041) into corrugation.







