Service Manual User Manual
Table Of Contents
- 9020-7317 534B SERVICE MANUAL
- OPERATOR INSTRUCTIONS & LUBRICATION
- 8496 Operation & Lubrication Manual
- 8366 Operation & Lubrication Manual
- IMPORTANT SAFETY NOTICE
- INTRODUCTION
- SAFETY HIGHLIGHTS
- OPERATOR'S CAB
- CONTROL & INSTRUMENT IDENTIFICATION
- CHECKS & SERVICES BEFORE STARTING ENGINE
- ENGINE OPERATION
- WARM UP & OPERATIONAL CHECKS
- BRAKE SYSTEM
- STEERING SYSTEM
- DRIVE TRAIN
- MATERIAL HANDLING
- OPERATING PROCEDURES & TECHNIQUES
- PARKING
- STORAGE
- LUBRICATION & MAINTENANCE DIAGRAM
- 28327 Preventive Maintenance Chart
- HYDRAULIC SYSTEM
- 8497 System Operation Manual
- COVER
- NOMENCLATURE
- CAB CONTROLS AND GAGES
- ENGINE
- MAIN FRAME
- FRONT DRIVE AXLE
- DRIVE SHAFT
- REAR DRIVE AND STEERING AXLE
- TIRES
- TRANSMISSION & TORQUE CONVERTER
- STEERING CIRCUIT
- HYDRAULIC SERVICE BRAKE
- MECHANICAL PARKING BRAKE
- HYDRAULIC SYSTEM
- HYDRAULIC RESERVOIR
- HYDRAULIC PUMP
- MAIN CONTROL VALVE BANK
- MAIN PUMP CIRCUIT
- PILOT PUMP CIRCUIT
- HYDRAULIC CYLINDERS
- SWAY CIRCUIT
- LIFT CIRCUIT
- FRONT & REAR WHEEL DRIVE
- FORWARD / REVERSE LEVER (Neutral)
- FORWARD / REVERSE LEVER (Activated)
- INCHING
- TILT & COMPENSATING CIRCUITS
- OIL COOLER CIRCUIT
- CROWD (Boom In-Out) CIRCUIT
- AUXILIARY HYDRAULIC SYSTEM
- BOOM SECTIONS
- BOOM SLIDER PADS
- BOOM CROWD (IN-OUT) MOVEMENT
- MANUAL "QUICK-SWITCH" ASSEMBLY
- ELECTRICAL
- FUEL TANK
- 8369 System Operation Manual
- COVER
- NOMENCLATURE
- CAB CONTROLS AND GAGES
- ENGINE
- MAIN FRAME
- FRONT DRIVE AXLE
- DRIVE SHAFT
- REAR DRIVE AND STEERING AXLE
- TIRES
- TRANSMISSION & TORQUE CONVERTER
- STEERING CIRCUIT
- HYDRAULIC SERVICE BRAKES
- MECHANICAL PARKING BRAKE
- HYDRAULIC SYSTEM
- HYDRAULIC RESERVOIR
- HYDRAULIC PUMPS
- MAIN CONTROL VALVE BANK
- MAIN PUMP CIRCUITS
- PILOT PUMP CIRCUIT
- HYDRAULIC CYLINDERS
- SWAY CIRCUIT
- LIFT CIRCUIT
- FRONT & REAR WHEEL DRIVE
- FORWARD / REVERSE LEVER (Neutral)
- FORWARD / REVERSE LEVER (Activated)
- INCHING
- TILT & COMPENSATING CIRCUITS
- OIL COOLER CIRCUIT
- CROWD (Boom In-Out) CIRCUITS
- AUXILIARY HYDRAULIC SYSTEM
- BOOM SECTIONS
- BOOM SLIDER PADS
- BOOM CROWD (IN-OUT) MOVEMENT
- MANUAL "QUICK-SWITCH" ASSEMBLY
- ELECTRICAL
- FUEL TANK
- 81-515-009 Mico Sliding Caliper Disc Brakes Service Manual
- 81-600-001 Mico Guidelines for Installing Hydraulic Brake Components
- 81-950-016 Mico Brake Service Procedures
- 81-460-159 Mico Hydraulic Brake Valve
- 8497 System Operation Manual
- TESTING & ADJUSTING
- TROUBLE SHOOTING
- TRANSMISSION & TORQUE CONVERTER
- SM HR 182-3 Clark 18000 Series Powershift Transmission
- HOW THE UNITS OPERATE
- SECTIONAL VIEWS AND PARTS IDENTIFICATION
- DISASSEMBLY OF TRANSMISSION
- CLUTCH DISASSEMBLY
- CLEANING AND INSPECTION
- REASSEMBLY OF TRANSMISSION
- SERVICING MACHINE AFTER TRANSMISSION OVERHAUL
- TOWING OR PUSH STARTING
- SPECIFICATIONS AND SERVICE DATA
- LUBRICATION
- TROUBLESHOOTING GUIDE
- TYPICAL TWO AND THREE SPEED POWER FLOW
- PRESSURE CHECK POINTS
- CLUTCH AND GEAR ARRANGEMENT
- DRIVE PLATE INSTALLATION
- TRANSMISSION TO ENGINE INSTALLATION PROCEDURE
- SPEED SENSOR BUSHING INSTALLATION
- SM HR 182-3 Clark 18000 Series Powershift Transmission
- MISCELLANEOUS
- OPERATOR INSTRUCTIONS & LUBRICATION

GRADALL LOED MATERIAL HANDLER 534B
PROCEDURE FOR INSTALLING
BOOM BEARING RETAINING BOLTS
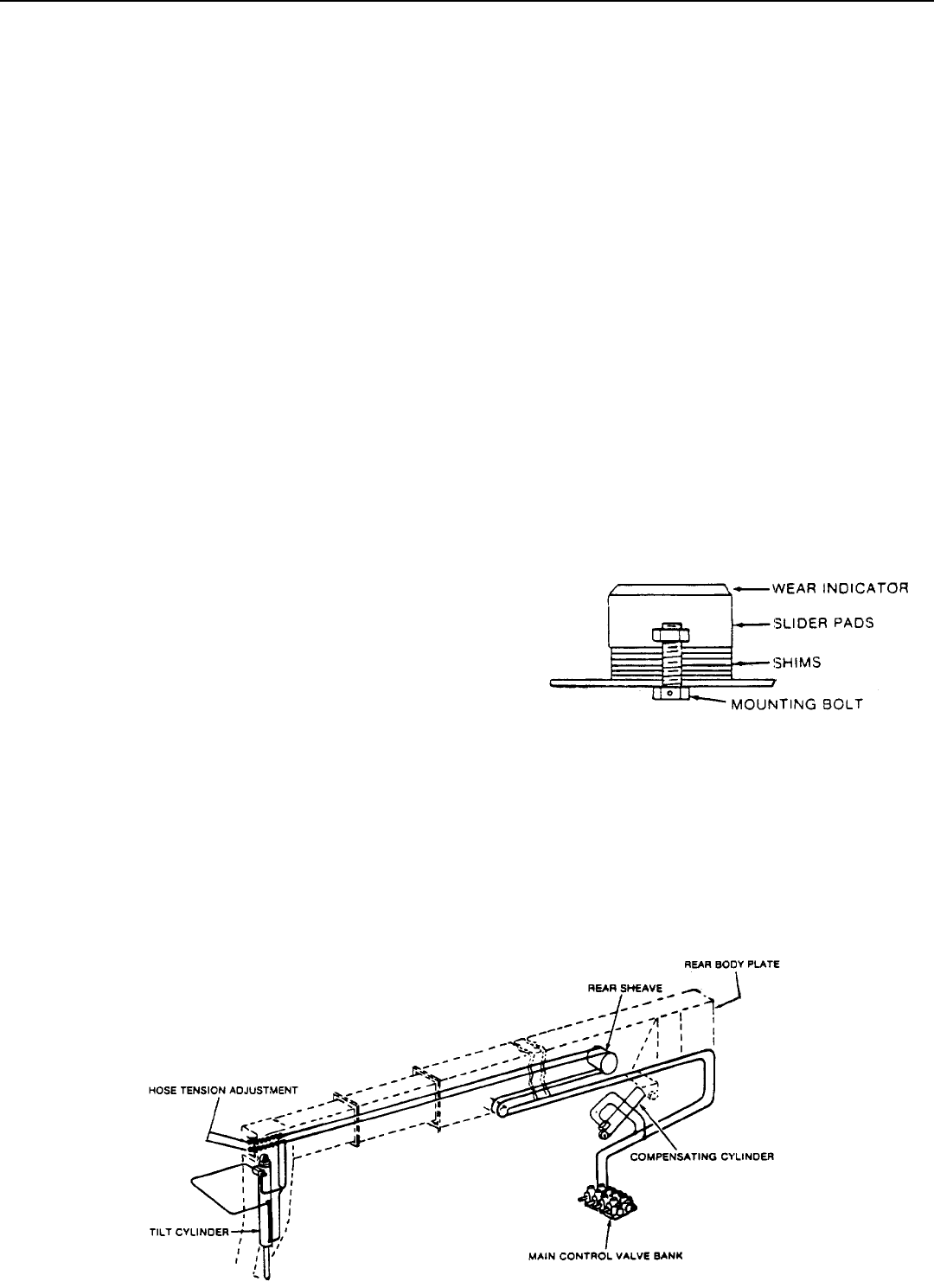
BOOM SLIDER PAD ADJUSTMENT
Slider pads are used between booms to prevent
boom wear. If excessive clearance appears between
the boom sections. pads should be adjusted by
shimming.
HOW TO TEST PADS
FOR EXCESSIVE CLEARANCE
(OVER 1/16") BETWEEN BOOMS
To test the boom clearance, extend the boom fully
and place the head or the attachment on the ground
Raise and lower the boom slowly and observe the
clearance between the pads and the boom sections.
Also inspect the mating surface of each of the top
and bottom pads. These pads are beveled on the
sides. When they wear down to a point where there
is no more bevel, they should be replaced
If adjustment is called for, shims should be added to
bring the pads back into close contact with the
adjacent boom. Add shims until no more shims can
be added.
TESTING AND ADJUSTING
Remove the rear main boom plate and visually
inspect, using a flashlight, to see if the hoses are tight
against the rear sheave. If there appears to be slack
in the hoses, tighten them by turning in on the
adjusting nuts. Loosen the jam nut and tighten as
required. When proper tension is obtained, tighten
the jam nut and replace the rear plate.
The hoses carrying oil to the front of the boom are
clamped to the bottom plate of the main boom. To
keep them against the two sheave assemblies, hose
tensioning devices are clamped to each hose at the
very front top of the inner boom.
HOW TO CHECK AND TIGHTEN
BOOM HOSES
Shim bearing to proper fit.
When installing bearing retaining bolt. make sure
end of bolt is not sticking out of bearing insert to the
point where it would be in the bearing wear area. To
achieve this, you may have to use washers under the
heads of the bolts as shims. If this causes the bolt
heads to hit other boom bearings exchange these
bolts for ones of correct length.
3/8" bearing retainer bolts should be installed with
loctite and then torqued to 20-ft./lbs
1/2" bearing retainer bolts should be installed with
loctite and then torqued to 60-ft./lbs.
When rechecking bolts at correct torque after loctite
has set they should not turn. If they do turn more
than 360ΓΈ they must be removed and loctite
reapplied.
NOTE: When removing bearing pad bolts to
reapply loctite only remove one bolt at a time.
Reinstall the bolt and tighten before removing
another bolt. This prevents the shims or bearing pad
from falling out of place.
10
l
l
l
l
l