User's Manual
Table Of Contents

Setup
22 333347F
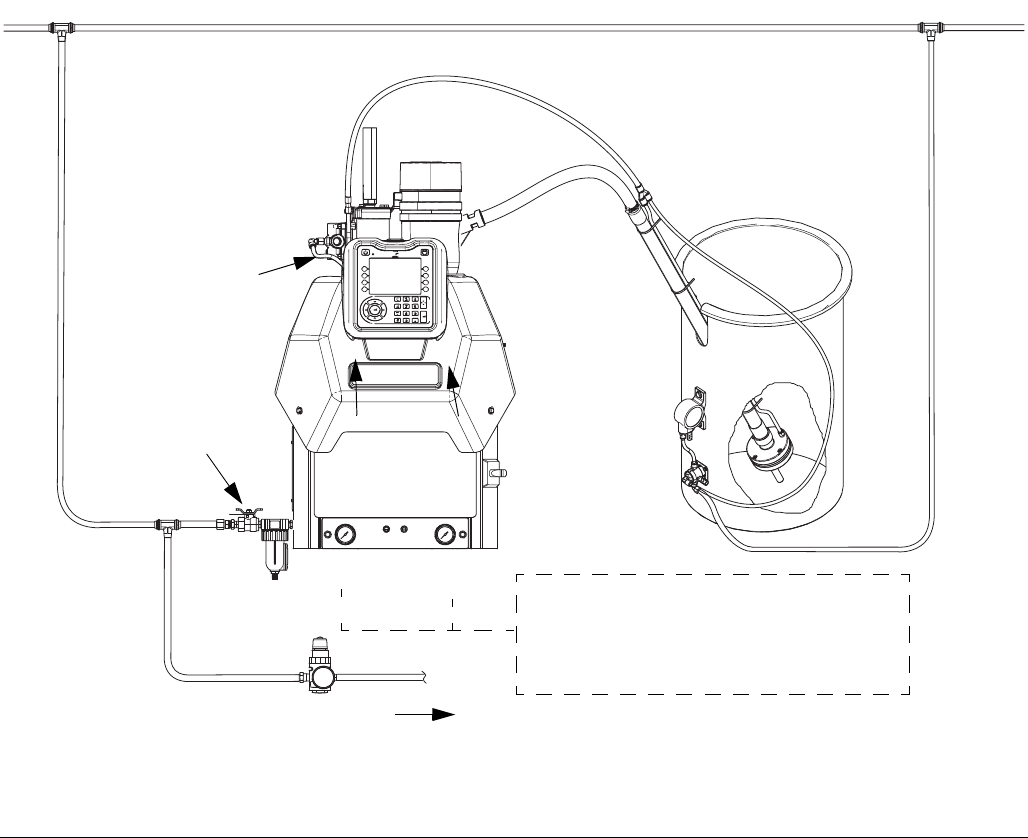
Recommended Air Setup
F
IG
. 14
WLE
Main Air Line
Air to applicators
Air In:
Less than 50 ft (15.2 m): 3/8 in.
More than 50 ft (15.2 m): 1/2 in.
80-100 psi
(5.5-6.8 bar, 0.55-6.8 MPa)
30 scfm capacity.
Air Filter/Ball Valve at
System Air Inlet
(Graco Kit 24R707,
included)
Regulator set to
70 psi
(4.8 bar, 0.48 MPa)
Air In:
3/8 in.,
100 psi
(6.8 bar, 0.68 MPa),
30 scfm capacity
No dips in vacuum
transfer hose
Vacuum:
40 - 80 psi (2.8-5.5 bar,
0.28-0.55 MPa);
and at least 65% of hopper
shaker air pressure, if used
Pump:
20-100 psi
(1.4-6.8 bar,
0.14-0.68 MPa)
Ensure funnel air
is connected
Vacuum Pump










