Operation Manual

9
DENLP
Apparecchio classe I (tipo Y): può essere accostato a mobili che superano in altezza il piano di lavoro.
Apparatus class I (type Y): it can be brought near furniture being higher than the work-top
Appareil classe I (type Y): peut être mis contre les meubles dépassant en hauteur le plan de travail.
Gerät der Klasse I (Typ Y): kann an solche Möbel angestellt werden, die höher als die Arbeitsfläche sind.
Aparato clase I (tipo Y): se puede instalar acercado a muebles que sobresalen de la altura de la superficie de trabajo.
Toestel klas I (type Y): het kan naast meubels geplaatst worden die hoger zijn dan het werkbland.
Aparelho classe I (tipo Y): pode ser instalado ao lado de móveis de altura superior ao plano de cozedura.
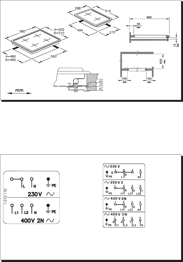
Fig. 4 - Abb. 4
H05RR-F 3x2,5 *
H05RR-F 4x1,5 *
H05RR-F 4x1,5 *
H05RR-F 5x1,5 *
* Tenendo conto del fattore di contemporaneità 0,75
* Considering contemporaneity factor 0.75
* En tenant compte du coefficient de simultaneité 0.75
* Bei Gleichzeitigkeitsfaktor 0,75
* Tomando en cuenta el factor de simultaneidad 0,75
* In aanmerking van de Geleijktijdigheidsfactor 0.75.
* Tomando em consideração o factor de simultaneidade 0,75
HO5RR - F3 x 1.5*
HO5RR - F4 x 0.75*
Fig. 5 - Abb. 5