Specification

www.goodmanmfg.com SS-GMVM97
SS-GMVM97 www.goodmanmfg.com
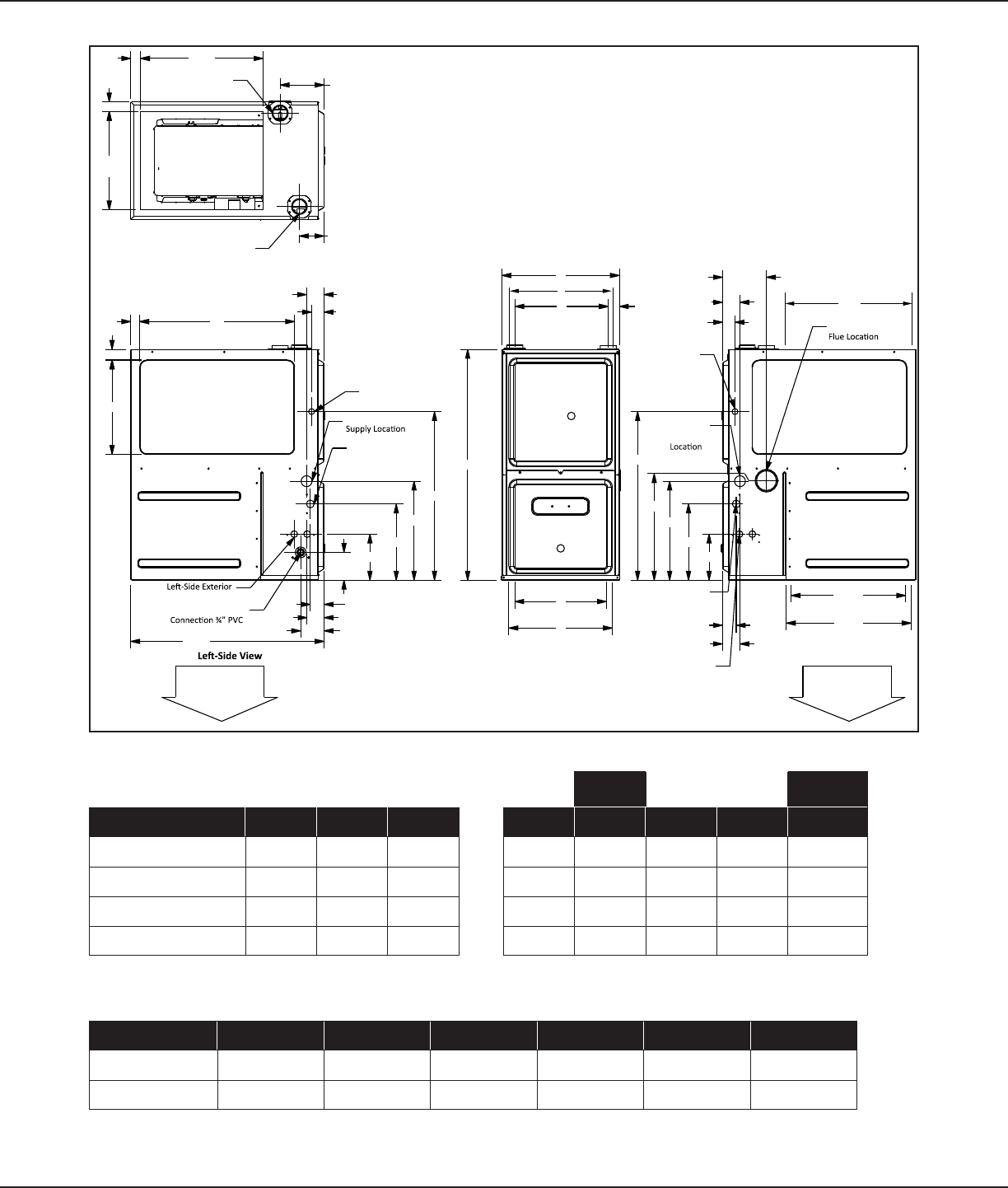
GCVM97 Dimensions
Air
Return
Air
Discharge
Model W D H A B C D E
GCVM970603BNA
GCVM970803BNA
Minimum Clearances to Combustible Materials
Position Sides Rear Front Bottom Flue Top
NC
C
18¼
A
34½
4⅛
11⅜
14¾
25⅛
B
Return
28¾
C
6⅞ 6⅞
11⅜
14⅞
14¾
25⅛
3½
2½
2
1⅞
2⅝
23
14
1⅜
1½
1⅝
1½
1½
E
D
Unfolded Flanges
18⅛
Unfolded Flanges
20⅛
Folded Flanges
2⅝
1⅞
2½
6½
2
6½
3⅝
Front View
Right-Side View
Top View
Low-Voltage
Electrical Outlet
Alternate Gas
High-Voltage
Electrical Outlet
Standard Drain Trap
Drain Trap Holes
Air Intake Pipe
2” PVC
Vent/Flue Pipe
2" PVC
Alternate
Gas Supply
Alternate Vent/
High-Voltage
Electrical Outlet
Right Side Exterior
Drain Trap Holes
Low-Voltage
Electrical Outlet
Air
Discharge
Air
Discharge
Folded Flanges
B
18¼










