Specification

10 www.goodmanmfg.com SS-GMVM97
SS-GMVM97 www.goodmanmfg.com 11
⚠ Warning
High Voltage:
⚡
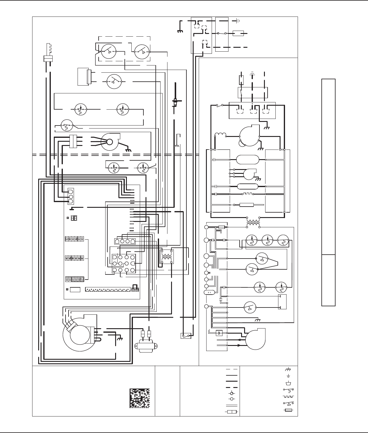
Wiring Diagram
GR GREEN
R
D
R
E
D
G
Y
G
R
A
Y
O
R
O
R
A
N
G
E
C
O
L
O
R
C
O
D
E
S
:
P
K
P
I
N
K
B
R
B
R
O
W
N
W
H
W
H
I
T
E
B
L
B
L
U
E
Y
L
Y
E
L
L
O
W
P
U
P
U
R
P
L
E
B
K
B
L
A
C
K
V
A
C
1
1
5
S
E
N
S
O
R
F
L
A
M
E
INTEGRATED CONTROL
MODULE
GY
BL
RAMPING
GY
40 VA
TRANSFORMER
BR
BK
O
R
(10)
GND
2
OR
AUX
HSI
9
8
12
1
11
7
2
5 4
3
6
10
DEHUM
W2
C
1
Y1
2
R
W1
EAC
HUM
Y2
ID BLOWER
CONNECTOR
G
O
LED'S
DIAGNOSTIC
4
FLAME
SENSOR
1
DELAY
3
NEUTRAL
1
3
2
DEHUM
LINE
ADJUST
F
U
S
E
2
BIAS
OR
YL
BK
WH
WH
WH
WH
OR
RD
WH
BK
BR
OR
RD
BK
GY
BL
2
A
U
X
I
L
I
A
R
Y
P
K
W
A
R
N
I
N
G
:
D
I
S
C
O
N
N
E
C
T
MICRO
TO
O
R
N
N
O
3
BR
L
1
P
R
E
S
S
U
R
E
(2)
S
E
N
S
O
R
F
L
A
M
E
G
R
C
G
V
A
C
1
C
(ON SOME MODELS)
P
U
VALVE
GAS
RD
A
N
D
G
R
O
U
N
D
E
D
.
1
BLWR
NEUTRAL
1
1
5
W
H
F
I
E
L
D
G
N
D
W
A
R
N
I
N
G
:
W
2
G
R
O
U
N
D
E
D
.
2
GR
BL
B
R
TRANSFORMER
WH
N
O
SWITCH
W
H
(11)
1
NEUTRAL
O
R
Y
2
ELECTRONIC
Y
1
W
H
AIR
L
P
U
N
O
T
E
S
:
(3)
P
K
IGN
3
B
K
GND (4)
5
W
H
O
NO
W
1
S
W
I
T
C
H
P
R
E
S
S
U
R
E
H
I
G
H
F
I
R
E
PU
D
I
S
C
O
N
N
E
C
T
2
FS
C
NEUTRAL
4
B
K
LINE
C
D
O
O
R
O
P
E
N
)
C
O
M
P
A
R
T
M
E
N
T
B
L
O
W
E
R
N
E
U
T
R
A
L
JUNCTION BOX
GN
D
1
R
B
L
O
W
E
R
C
I
R
C
U
L
A
T
O
R
BLWR
J
U
N
C
T
I
O
N
O
R
CONTROLS
1
N
HUMIDIFIER
INDOOR
HIGH FIRE
D
I
S
C
O
N
N
E
C
T
M
O
D
U
L
A
T
I
N
G
C
(6)
O
V
E
R
C
U
R
R
E
N
T
HUM
C
O
N
N
E
C
T
O
R
Y
L
G
N
D
V
A
C
CHASSIS
GROUND
2
3
4
SWITCH
DOOR
NEUTRAL
(8)
I
G
N
I
T
E
R
S
U
R
F
A
C
E
H
O
T
2
G
N
D
DEHUM
Y
L
P
U
I
N
D
U
C
T
O
R
C
O
I
L
C
EAC
B
L
O
W
E
R
D
R
A
F
T
I
N
D
U
C
E
D
P
M
2
4
IGNITER
0
1
4
0
F
0
2
0
1
3
-
A
O
V
E
R
C
U
R
R
E
N
T
BK
CIRCULATOR
3
(12)
NO
H
A
R
N
E
S
S
P
M
T
E
R
M
I
N
A
L
OR
I
G
N
I
T
E
R
R
D
B
K
C
T
O
RD
LINE
PR
O
T
E
C
T
I
O
N
D
E
V
I
C
E
G
N
D
B
K
B
L
G
Y
R
D
INDOOR
AIR
CIRCULATOR
BLWR
TX (3)
RX (2)
+ VDC (1)
GND (4)
R
TO
MICRO
TO
Ø
/
6
0
H
Z
1
1
5
V
A
C
/
1
P
O
W
E
R
S
U
P
P
L
Y
W
I
T
H
P
O
W
E
R
B
E
F
O
R
E
S
E
R
V
I
C
I
N
G
W
I
R
I
N
G
.
T
O
U
N
I
T
M
U
S
T
B
E
T
O
U
N
I
T
M
U
S
T
B
E
P
R
O
P
E
R
L
Y
P
O
L
A
R
I
Z
E
D
E
Q
U
I
P
M
E
N
T
G
N
D
F
I
E
L
D
S
P
L
I
C
E
S
W
I
T
C
H
(
T
E
M
P
)
S
W
I
T
C
H
P
R
E
S
S
U
R
E
P
R
O
T
.
D
E
V
I
C
E
L
O
W
V
O
L
T
A
G
E
F
I
E
L
D
L
O
W
V
O
L
T
A
G
E
(
2
4
V
)
H
I
V
O
L
T
A
G
E
(
1
1
5
V
)
H
I
V
O
L
T
A
G
E
F
I
E
L
D
I
N
T
E
R
N
A
L
T
O
I
N
T
E
G
R
A
T
E
D
C
O
N
T
R
O
L
P
L
U
G
C
O
N
N
E
C
T
I
O
N
1
.
S
E
T
H
E
A
T
A
N
T
I
C
I
P
A
T
O
R
O
N
R
O
O
M
T
H
E
R
M
O
S
T
A
T
A
T
0
.
7
A
M
P
S
.
2
.
M
A
N
U
F
A
C
T
U
R
E
R
'S
S
P
E
C
I
F
I
E
D
R
E
P
L
A
C
E
M
E
N
T
P
A
R
T
S
M
U
S
T
B
E
U
S
E
D
W
H
E
N
S
E
R
V
I
C
IN
G
.
3
.
I
F
A
N
Y
O
F
T
H
E
O
R
I
G
I
N
A
L
W
I
R
E
A
S
S
U
P
P
L
I
E
D
W
I
T
H
T
H
E
F
U
R
N
A
C
E
M
U
S
T
B
E
R
E
P
L
A
C
E
D
,
I
T
M
U
S
T
B
E
R
E
P
L
A
C
E
D
W
I
T
H
W
I
R
I
N
G
M
A
T
E
R
I
A
L
H
A
V
I
N
G
A
T
E
M
P
E
R
A
T
U
R
E
R
A
T
I
N
G
O
F
A
T
L
E
A
S
T
1
0
5
°
C
.
U
S
E
C
O
P
P
E
R
C
O
N
D
U
C
T
O
R
S
O
N
L
Y
.
4
.
U
N
I
T
M
U
S
T
B
E
P
E
R
M
A
N
E
N
T
L
Y
G
R
O
U
N
D
E
D
A
N
D
C
O
N
F
O
R
M
T
O
N
.
E
.
C
.
A
N
D
L
O
C
A
L
C
O
D
E
S
.
5
.
T
O
R
E
C
A
L
L
T
H
E
L
A
S
T
1
0
F
A
U
L
T
S
,
M
O
S
T
R
E
C
E
N
T
T
O
L
E
A
S
T
R
E
C
E
N
T
,
D
E
P
R
E
S
S
S
W
I
T
C
H
F
O
R
M
O
R
E
T
H
A
N
2
S
E
C
O
N
D
S
W
H
I
L
E
I
N
S
T
A
N
D
B
Y
(
N
O
T
H
E
R
M
O
S
T
A
T
I
N
P
U
T
S
)
E
C
M
M
T
R
2
4
V
3
A
D
O
O
R
S
W
I
T
C
H
(
O
P
E
N
W
H
E
N
24V THERMOSTAT CONNECTIONS N.E.C. CLASS 2 WIRE
INTEGRATED CONTROL MODULE
24V HUM.
2
4
V
T
H
E
R
M
O
S
T
A
T
C
O
N
N
E
C
T
I
O
N
S
N
.
E
.
C
.
C
L
A
S
S
2
W
I
R
E
PULL DOWN
PULL UP
COOL SETUP
HEAT SETUP
HEAT OFF
DIP SWITCHES
FAN TAPS
HEAT TAPS
COOL TAPS
MODULATING INTERGRATED
FURNACE CONTROL MODULE
L
I
M
I
T
C
O
N
T
R
O
L
A
U
T
O
R
E
S
E
T
B
L
O
W
E
R
C
O
M
P
A
R
T
M
E
N
T
B
U
R
N
E
R
C
O
M
P
A
R
T
M
E
N
T
A
U
T
O
R
E
S
E
T
P
R
I
M
A
R
Y
L
I
M
I
T
C
O
N
T
R
O
L
M
A
N
U
A
L
R
E
S
E
T
R
O
L
L
O
U
T
L
I
M
I
T
C
O
N
T
R
O
L
S
(
S
I
N
G
L
E
C
O
N
T
R
O
L
O
N
4
0
k
B
T
U
)
2
C
I
R
C
U
I
T
G
A
S
V
A
L
V
E
(
H
O
N
E
Y
W
E
L
L
)
L
O
W
F
I
R
E
S
W
I
T
C
H
I
D
B
L
O
W
E
R
M
O
D
U
L
A
T
I
N
G
P
R
E
S
S
U
R
E
S
W
I
T
C
H
A
S
S
E
M
B
L
Y
T
O
1
1
5
V
A
C
/
1
Ø
/
6
0
H
Z
P
O
W
E
R
S
U
P
P
L
Y
W
I
T
H
O
V
E
R
C
U
R
R
E
N
T
P
R
O
T
E
C
T
I
O
N
D
E
V
I
C
E
D
I
S
C
O
N
N
E
C
T
P
O
W
E
R
B
E
F
O
R
E
S
E
R
V
I
C
I
N
G
W
I
R
I
N
G
T
O
U
N
I
T
M
U
S
T
B
E
P
R
O
P
E
R
L
Y
P
O
L
A
R
I
Z
E
D
A
N
D
AIR CLEANER
INTEGRATED CONTROL MODULE
3Ø ID
HOT SURFACE
40 VA
FUSE 3A
TR (5)
TO+VDC
24 VAC
AUTO RESET AUXILIARY LIMIT
AUTO RESET PRIMARY
LIMIT CONTROL
LOW FIRE
PRESS.
PRESS. SWITCH
MANUAL RESET ROL
LO
UT
LIMIT CONTROLS
TR (9)
OPTIONAL
OPTIONAL
INDUCTOR COIL
(ON SOME MODELS)
C
G
Y
G
Y
N
O
F
R
O
N
T
C
O
V
E
R
P
R
E
S
S
U
R
E
S
W
I
T
C
H
C
(7)
NO
FRONT COVER
PRESS.
SWITCH
GND
GND
B
K
W
H
JUNCTION BOX
G
N
D
G
R










