User Guide

7
IO-101G 06/04
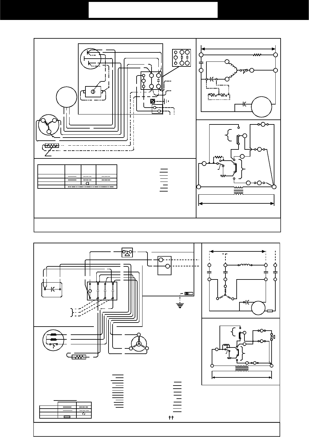
CONTROLS SHOWN WITH UTILITIES IN 'ON'POSITION
LOW VOLTAGE DEFROST RELAY
OUTDOOR THERMOSTAT (OPTIONAL)
HIGH VOLTAGE DEFROST RELAY
AND THERMOSTAT IN 'OFF' POSITION.
REVERSING VALVE COIL
FAN CAPACITOR
HIGH PRESSURE CONTROL
CRANKCASE HEATER
INTERNAL OVERLOAD
LOW PRESSURE CONTROL
DEFROST THERMOSTAT
COMPONENT CODE
OUTDOOR FAN MOTOR
DEFROST CONTROL
COMPRESSOR
CONTACTOR
CONNECT TO APPROP. CONTROL CIRCUIT HAVING
LIMITED CLASS 2 TRANSFORMER.
INSTALLATION. USE C.S.A. CERTIFIED ENERGY
TRAMSFORMER OR FOR CERTIFIED C.S.A
MIN. 40 VA. 24 VOLT N.E.C. CALSS 2
WIRING CODE
COPPER CONDUCTORS ONLY
EQUIPMENT GROUND USE
R
LIGHT BLUE
USE N.E.C. CLASS 2 WIRE
G GREEN
W
O ORANGE
WHITE
V
BR
LTBL
BL
R
Y
VIOLET
BROWN
YELLOW
BLUE
RED
COLOR CODE
BK BLACK
V
R
CM
AUX
MAIN
IO
BK
BR
V
POWER SUPPLY
(SEE RATING PLATE)
USE COPPER CONDUCTORS ONLY
FC
BR
DC
BK
CH
BK
COMP
C
BK
R
S
RVC
HVDR
LDVR
CH
IO
HP
OT
LP
FC
DFT
Y
BK
BK
COMP
C
CM
LOW VOLTAGE
HIGH VOLTAGE
FACTORY WIRING
T3
L3
R
L1
C
L2
T1
BL
T2
BK
R
Y
BK
Y
BR
V
Y
HP
1) TO INDOOR UNIT LOW
2) SEE INDOOR UNIT &
INDOOR THERMOSTAT.
OF OPTIONAL OUTDOOR THERMOSTAT.
INSTRUCTIONS FOR CONNECTION
OUTDOOR UNIT INSTALLATION
VOLTAGE TERMINAL BLOCK &
INDOOR POWER SUPPLY
NOTES:
FIELD WIRING
R
ADJ. HEAT
ANTICIPATOR
THERMOSTAT
BULB
THERMOSTAT
R
COOL
THERMOSTAT
ANTICIPATOR
B17783-00
07/97 REV. D
24V
TRANSFORMER
HEAT
W
COIL
SYSTEM
SWITCH
THERMOSTAT
OFF
COOL
COIL
FAN RELAY
COIL
C
CH
THERMOSTAT
FAN SWITCH
HP
3
COMP
2
C
T3
L3
C
T2
L2
MOTOR
AUTO
ON
G
CONTACTOR
1
CAP
C
T1
L1
OUTDOOR POWER SUPPLY
Y
LINE SPLICE
WIRE NUT
C
T1
L1
BL
V
V
LOW VOLTAGE
BK
ANTICIPATOR
THERMOSTAT
BULB
THERMOSTAT
ADJ. HEAT
THERMOSTAT
ANTICIPATOR
HIGH VOLTAGE
LOW VOLTAGE
OPTIONAL START ASSIST
WIRE NUT
REPLACEMENT WIRE MUST BE SAME
GAGE AND INSULATION THICKNESS,
105° C APPLIANCE WIRING MATERIAL.
NOTES:
CRANKCASE HEATER IF USED
WIRING CODE
BK
WIRING
FACTORY
FIELD
WIRING
WIRING FOR
FACTORY
OPTIONS
G
BR
LTBL
LIGHT BLUE
GREEN
BROWN
R
COLOR CODE
PU
Y
BL
R
BK
YELLOW
PURPLE
BLUE
RED
BLACK
R
B17784-01
W
24V
INDOOR POWER SUPPLY
3/98 REV. A
LOW VOLTAGE
TRANSFORMER
COOL
OFF
HEAT
COOL
THERMOSTAT
SYSTEM
SWITCH
COIL
FAN RELAY
Y
COIL
C
THERMOSTAT
FAN SWITCH
Y
(START ASSIST
START ASSIST
OUTDOOR CONTROL BOX
COMPRESSOR/FAN
R
BR
R
R
BK
SC
COMPRESSOR
Y
BK
PU
PU
FAN MOTOR
IF USED)
Y
CAPACITOR
HERM
F
C
T2
BK
BK
Y
R
PU
PU
L1
T1
TRANSFORMER OR FOR
MIN. 40 VA 24 VOLT
CONTROL CIRCUIT HAVING
INSTALLATION. USE C.S.A.
CERTIFIED ENERGY LIMITED
CLASS 2 TRANSFORMER.
CERTIFIED C.S.A.
N.E.C. CLASS 2
CONNECT TO APPROP.
OUTDOOR POWER
SUPPLY - (SEE
UNIT RATING
USE COPPER
CONDUCTORS ONLY
GROUNDED SUPPLY
NEUTRAL OR
EQUIPMENT GROUND
USE L1 FOR
IF USED
L2
T2
PLATE)
R
Y
R
BR
PU
BK
BK
ALT. DOUBLE
POLE CONTACTOR
R
R
L1
T1
L2
T2
T
O
T
A
C
O
N
L2
C
T1
C
CONTACTOR
CAPACITOR
AUTO
ON
G
COIL
COMPRESSOR
INTERNAL
OVERLOAD
START ASSIST
(IF USED)
MOTOR
S
FAN MOTOR
R
OUTDOOR POWER SUPPLY
CRANKCASE HEATER
COMPRESSOR
R
(IF USED)
T
T
O
C
A
L1
O
N
C
SINGLE PHASE
THREE PHASE
WIRING DIAGRAMS








