- Goodman Mfg. Co. LP Gas Fired Central Furnaces INSTALLATION & OPERATING INSTRUCTIONS GMS8, GDS8, GHS8

31
IO-242C 05/05
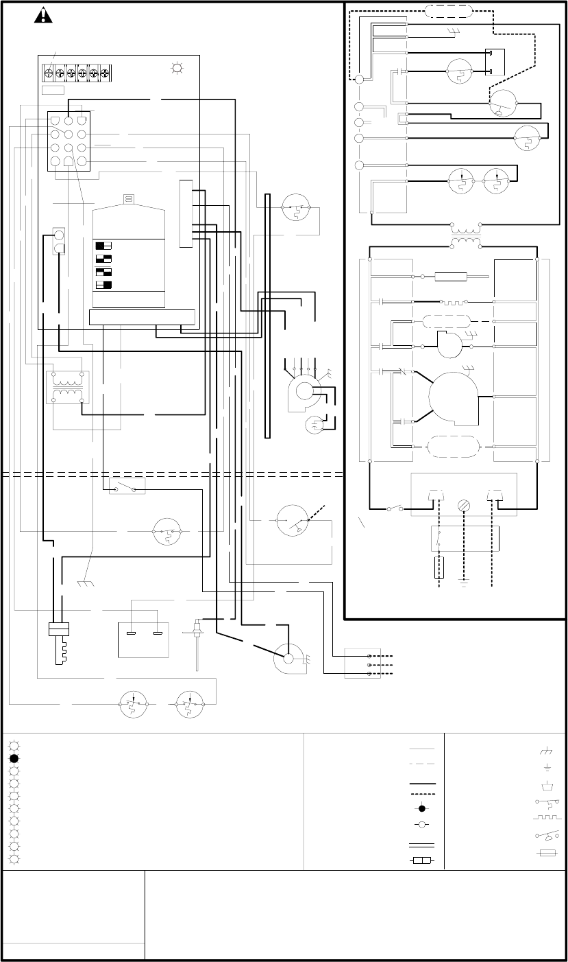
Wiring Diagram for GMS8/GDS8/GHS8
T
O
1
1
5
V
A
C
/
1
Ø
/
6
0
H
Z
P
O
W
E
R
S
U
P
P
L
Y
W
I
T
H
J
U
N
C
T
I
O
N
B
O
X
G
N
D
L
I
N
E
-
N
L
I
N
E
H
D
O
O
R
S
W
I
T
C
H
P
R
O
P
E
R
L
Y
P
O
L
A
R
I
Z
E
D
A
N
D
G
R
O
U
N
D
E
D
.
S
E
R
V
I
C
I
N
G
.
W
I
R
I
N
G
T
O
U
N
I
T
M
U
S
T
B
E
W
A
R
N
I
N
G
:
D
I
S
C
O
N
N
E
C
T
P
O
W
E
R
B
E
F
O
R
E
CAP
BK (HI)
A
U
X
I
L
A
R
Y
I
N
T
E
G
R
A
T
E
D
2
4
V
A
C
F
U
S
E
6
3
9
1
2
H
U
M
I
D
I
F
I
E
R
T
W
I
N
R
5
4
1
2
8
7
1
1
1
0
O
L
E
D
D
I
A
G
N
O
S
T
I
C
L
I
N
E
-
H
X
F
M
R
-
H
H
E
A
T
-
H
C
O
O
L
-
H
B
L
O
W
E
R
H
E
A
T
D
I
P
S
W
I
T
C
H
E
S
O
F
F
D
E
L
A
Y
S
E
L
E
C
T
O
R
C
O
N
T
R
O
L
M
O
D
U
L
E
(
S
E
C
O
N
D
S
)
BK
1
1
5
V
A
C
H
O
T
A
N
D
P
A
R
K
T
E
R
M
I
N
A
L
S
F
R
O
M
F
A
C
T
O
R
Y
2
1
GN
*
PU
O
N
9
0
1
2
0
O
N
O
N
O
F
F
O
N
1
8
0
1
5
0
*
A
S
S
H
I
P
P
E
D
O
F
F
O
F
F
O
F
F
XFMR
BK
BK
BK
115V
24V
115 VAC NEUTRAL
BR
L
I
M
I
T
S
W
W (N)
R (LOW)
O (MED LOW)
BL (MED)
BLOWER
CICULATOR
24V THERMOSTAT CONNECTIONS
R
O
2
(
1
1
)
L
I
M
I
T
G
N
D
(
8
)
H
U
M
I
D
I
F
I
E
R
X
F
M
R
(
6
)
G
N
D
G
C
W
Y
T
O
M
I
C
R
O
R
M
V
(
1
2
)
M
V
C
(
9
)
A
U
X
I
L
I
A
R
Y
L
I
M
I
T
C
O
N
T
R
O
L
S
P
S
(
1
0
)
P
S
O
(
4
)
H
L
I
(
7
)
H
L
O
(
1
)
C
O
N
T
R
O
L
M
O
D
U
L
E
I
N
T
E
G
R
A
T
E
D
N
O
S
W
I
T
C
H
P
R
E
S
S
U
R
E
I
D
B
L
O
W
E
R
V
A
L
V
E
M
1
G
A
S
C
2
C
A
U
T
O
R
E
S
E
T
P
R
I
M
A
R
Y
M
A
N
U
A
L
R
E
S
E
T
R
O
L
L
O
U
T
L
I
M
I
T
C
O
N
T
R
O
L
(
S
)
1
1
5
V
A
C
F
L
A
M
E
S
E
N
S
O
R
F
P
(
2
)
X
F
M
R
-
H
X
F
M
R
(
3
)
R
O
1
(
5
)
2
4
V
A
C
H
O
T
S
U
R
F
A
C
E
I
G
N
I
T
E
R
H
U
M
-
H
INTEGRATED CONTROL MODULE
BR
BR
C
O
O
L
-
H
H
U
M
I
D
I
F
I
E
R
I
G
N
I
N
D
I
D
B
L
W
R
C
I
R
C
U
L
A
T
O
R
H
E
A
T
-
H
C
O
O
L
H
E
A
T
B
L
W
R
T
R
A
N
S
F
O
R
M
E
R
4
0
V
A
C
O
N
T
R
O
L
X
F
M
R
-
N
INTEGRATED CONTROL MODULE
H
U
M
-
N
C
I
R
-
N
B
1
4
9
3
3
2
5
5
R
E
V
.
0
0
5
.
U
N
I
T
M
U
S
T
B
E
P
E
R
M
A
N
E
N
T
L
Y
G
R
O
U
N
D
E
D
A
N
D
C
O
N
F
O
R
M
T
O
N
.
E
.
C
.
A
N
D
L
O
C
A
L
C
O
D
E
S
.
O
N
S
O
M
E
M
O
D
E
L
S
H
U
M
I
D
I
F
I
E
R
2
4
V
A
C
I
N
D
U
C
E
D
D
R
A
F
T
B
L
O
W
E
R
C
O
M
P
A
R
T
M
E
N
T
B
U
R
N
E
R
C
O
M
P
A
R
T
M
E
N
T
R
E
P
L
A
C
E
D
,
I
T
M
U
S
T
B
E
R
E
P
L
A
C
E
D
W
I
T
H
W
I
R
I
N
G
M
A
T
E
R
I
A
L
H
A
V
I
N
G
A
T
E
M
P
E
R
A
T
U
R
E
3
.
I
F
A
N
Y
O
F
T
H
E
O
R
I
G
I
N
A
L
W
I
R
E
A
S
S
U
P
P
L
I
E
D
W
I
T
H
T
H
E
F
U
R
N
A
C
E
M
U
S
T
B
E
"
P
A
R
K
"
T
E
R
M
I
N
A
L
S
O
F
I
N
T
E
G
R
A
T
E
D
C
O
N
T
R
O
L
O
R
T
A
P
E
D
.
B
E
F
O
R
E
C
O
N
N
E
C
T
I
N
G
B
L
O
W
E
R
L
E
A
D
S
.
U
N
U
S
E
D
B
L
O
W
E
R
L
E
A
D
S
M
U
S
T
B
E
P
L
A
C
E
D
O
N
4
.
I
F
H
E
A
T
I
N
G
A
N
D
C
O
O
L
I
N
G
B
L
O
W
E
R
S
P
E
E
D
S
A
R
E
N
O
T
T
H
E
S
A
M
E
D
I
S
C
A
R
D
J
U
M
P
E
R
I
N
T
E
G
R
A
T
E
D
C
O
N
T
R
O
L
I
N
T
E
R
N
A
L
T
O
2
.
M
A
N
U
F
A
C
T
U
R
E
R
'
S
S
P
E
C
I
F
I
E
D
R
E
P
L
A
C
E
M
E
N
T
P
A
R
T
S
M
U
S
T
B
E
U
S
E
D
W
H
E
N
S
E
R
V
I
C
I
N
G
.
1
.
S
E
T
H
E
A
T
A
N
T
I
C
I
P
A
T
O
R
O
N
R
O
O
M
T
H
E
R
M
O
S
T
A
T
A
T
0
.
7
A
M
P
S
.
B
L
O
W
E
R
G
A
S
V
A
L
V
E
P
R
I
M
A
R
Y
L
I
M
I
T
BK
GN
W
I
G
N
I
T
E
R
S
U
R
F
A
C
E
H
O
T
M
1
PU
W
R
W
1
5
P
I
N
P
L
U
G
C
N
O
S
W
I
T
C
H
P
R
E
S
S
U
R
E
BR
C
2
S
E
N
S
O
R
F
L
A
M
E
BK
W
R
O
L
L
O
U
T
L
I
M
I
T
S
C
O
N
T
I
N
U
O
U
S
/
R
A
P
I
D
F
L
A
S
H
E
S
=
R
E
V
E
R
S
E
D
1
1
5
V
A
C
P
O
L
A
R
I
T
Y
S
Y
S
T
E
M
L
O
C
K
O
U
T
(
R
E
T
R
I
E
S
/
R
E
C
Y
C
L
E
S
E
X
C
E
E
D
E
D
)
7
F
L
A
S
H
E
S
=
L
O
W
F
L
A
M
E
S
I
G
N
A
L
5
F
L
A
S
H
E
S
=
F
L
A
M
E
S
E
N
S
E
W
I
T
H
O
U
T
G
A
S
V
A
L
V
E
4
F
L
A
S
H
E
S
=
O
P
E
N
H
I
G
H
L
I
M
I
T
3
F
L
A
S
H
E
S
=
P
R
E
S
S
U
R
E
S
W
I
T
C
H
S
T
U
C
K
O
P
E
N
2
F
L
A
S
H
E
S
=
P
R
E
S
S
U
R
E
S
W
I
T
C
H
S
T
U
C
K
C
L
O
S
E
D
S
T
E
A
D
Y
O
N
=
N
O
R
M
A
L
O
P
E
R
A
T
I
O
N
O
F
F
=
C
O
N
T
R
O
L
F
A
I
L
U
R
E
5
1
F
L
A
S
H
=
0
1
2
3
4
PU
6
F
L
A
S
H
E
S
=
O
P
E
N
R
O
L
L
O
U
T
C
O
L
O
R
C
O
D
E
S
:
P
U
P
U
R
P
L
E
O
O
R
A
N
G
E
Y
Y
E
L
L
O
W
6
7
C
B
K
B
L
A
C
K
G
N
G
R
E
E
N
B
R
B
R
O
W
N
P
K
P
I
N
K
R
R
E
D
G
Y
G
R
A
Y
B
L
B
L
U
E
W
W
H
I
T
E
PU
R
A
T
I
N
G
O
F
A
T
L
E
A
S
T
1
0
5
º
C
.
U
S
E
C
O
P
P
E
R
C
O
N
D
U
C
T
O
R
S
O
N
L
Y
.
N
O
T
E
S
:
O
V
E
R
C
U
R
R
E
N
T
P
R
O
T
E
C
T
I
O
N
D
E
V
I
C
E
J
U
N
C
T
I
O
N
B
O
X
M
U
S
T
B
E
W
A
R
N
I
N
G
:
E
A
C
-
H
S
W
I
T
C
H
W
I
R
I
N
G
T
O
U
N
I
T
B
E
F
O
R
E
S
E
R
V
I
C
I
N
G
.
D
I
S
C
O
N
N
E
C
T
P
O
W
E
R
L
I
N
E
-
H
D
O
O
R
E
L
E
C
T
R
O
N
I
C
A
I
R
C
L
E
A
N
E
R
A
N
D
G
R
O
U
N
D
E
D
.
P
O
L
A
R
I
Z
E
D
P
R
O
P
E
R
L
Y
L
G
N
D
L
I
N
E
-
N
E
A
C
-
N
D
I
S
C
O
N
N
E
C
T
N
S
W
I
T
C
H
(
T
E
M
P
.
)
F
I
E
L
D
S
P
L
I
C
E
S
W
I
T
C
H
(
P
R
E
S
S
.
)
P
R
O
T
.
D
E
V
I
C
E
O
V
E
R
C
U
R
R
E
N
T
E
Q
U
I
P
M
E
N
T
G
N
D
T
E
R
M
I
N
A
L
J
U
N
C
T
I
O
N
H
I
V
O
L
T
A
G
E
F
I
E
L
D
H
I
V
O
L
T
A
G
E
(
1
1
5
V
)
L
O
W
V
O
L
T
A
G
E
F
I
E
L
D
L
O
W
V
O
L
T
A
G
E
(
2
4
V
)
P
L
U
G
C
O
N
N
E
C
T
I
O
N
I
G
N
I
T
E
R
F
I
E
L
D
G
N
D
I
N
D
-
N
I
G
N
-
N
O
V
E
R
C
U
R
R
E
N
T
P
R
O
T
E
C
T
I
O
N
P
O
W
E
R
S
U
P
P
L
Y
W
I
T
H
T
O
1
1
5
V
A
C
/
1
/
6
0
H
Z
D
E
V
I
C
E
W
BK
S
W
I
T
C
H
L
O
C
A
T
E
D
I
N
B
L
O
W
E
R
C
O
M
P
A
R
T
M
E
N
T
O
N
S
O
M
E
M
O
D
E
L
S
R
R
R
BL
Y
Y
R
BL
BL
PU
Y
Y
BR
O
oo
Y
Y
RR
WW
W
Y
o
BK
Y
BR
W
G
C
W
Y
R