- Goodman Mfg. Co. LP Gas Fired Central Furnaces INSTALLATION & OPERATING INSTRUCTIONS GMS8, GDS8, GHS8

12
IO-242C 05/05
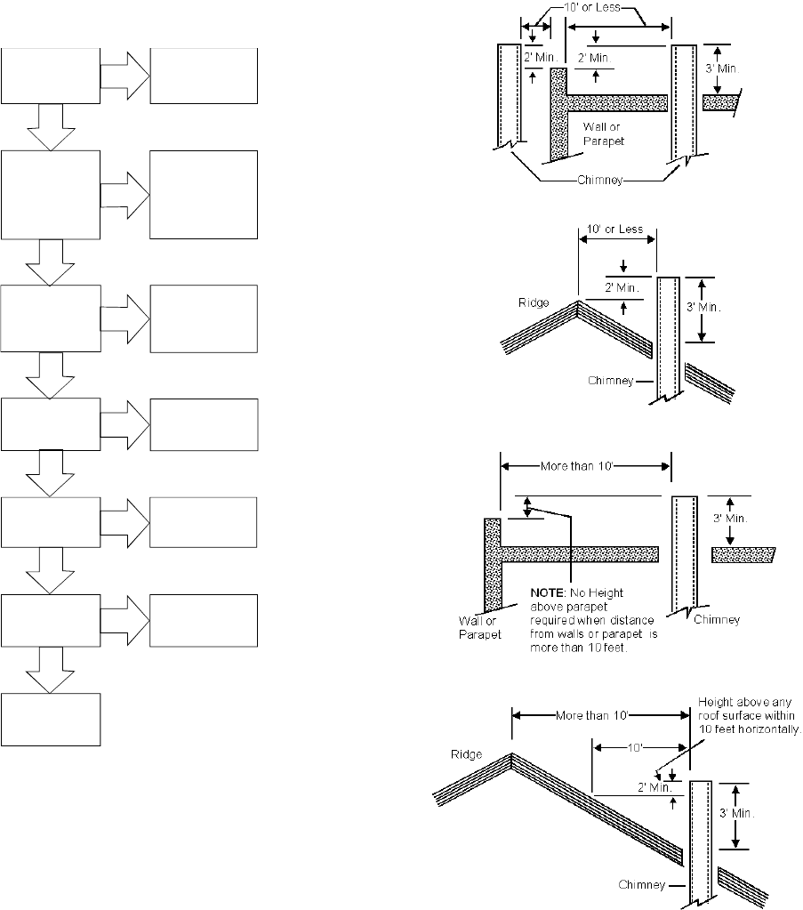
Termination 10 Feet Or Less From Ridge, Wall or Parapet
Termination More Than 10 Feet From Ridge, Wall or Parapet
CHECK 2 - ANY SOLID OR LIQUID FUEL APPLIANCES VENTED INTO
THIS
CHIMNEY CHANNEL
Solid fuel appliances include fireplaces, wood stoves, coal furnaces,
and incinerators.
Liquid fuel appliances include oil furnaces, oil-fired boilers and oil-
fired water heaters.
Appliances which burn propane (sometimes referred to as LP
(liquefied petroleum)) gas are considered gas-fired appliances.
Proper Chimney
Termination?
(Check 1)
Line, terminate with
listed vent cap
(Fix 1)
No
Yes
Chimney channel
free of solid and
liquid fuel
appliances?
(Check 2)
Change venting
arrangements
(Fix 2)
No
Yes
Crown in good
condition
(Check 3)
Rebuild crown
(Fix 3)
and/or Reline
(Fix 4)
Yes
No
Yes
No
No
Reline
(Fix 4)
Reline
(Fix 4)
Cleanout free of
debris?
(Check 4)
Liner in good
condition?
(Check 5)
Yes
Yes
No
Reline
(Fix 4)
Dilution air
available?
(Check 6)
Complete the
installation.
(Check 7)
CHECK 1 - PROPER CHIMNEY TERMINATION.
A masonry chimney used as a vent for gas fired equipment must
extend at least three feet above the highest point where it passes
through the roof. It must extend at least two feet higher than any
portion of a building within a horizontal distance of 10 feet. In
addition, the chimney must terminate at least 3 feet above any
forced air inlet located within 10 feet. The chimney must extend at
least five feet above the highest connected equipment draft hood
outlet or flue collar.
If the chimney does not meet these termination requirements, but
all other requirements in the checklist can be met, it may be
possible for a mason to extend the chimney. If this will not be
practical, see Fix 1.










