User Guide

15
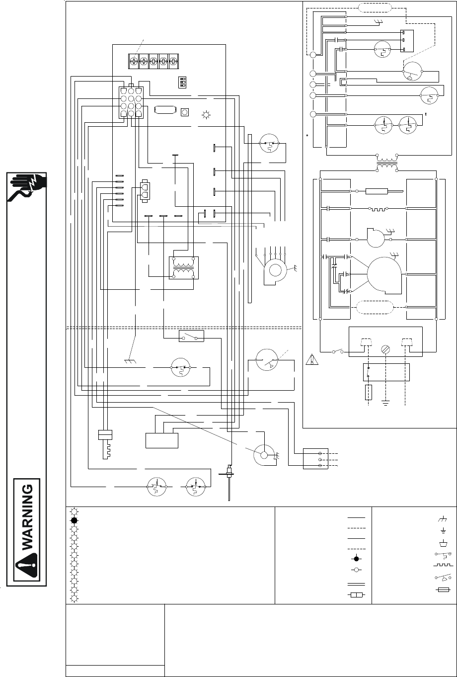
WIRING DIAGRAMS
Wiring is subject to change. Always refer to the wiring diagram on the unit for the most up-to-date wiring.
HIGH VOLTAGE!
DISCONNECT ALL POWER BEFORE SERVICING OR INSTALLING THIS
UNIT. MULTIPLE POWER SOURCES MAY BE PRESENT. FAILURE TO
DO SO MAY CAUSE PROPERTY DAMAGE, PERSONAL INJURY OR DEATH.
GME8_CB
BK (HI)
AUXILIARY
PROPERLY POLARIZED AND GROUNDED.
SERVICING.WIRING TO UNIT MUST BE
WARNING:DISCONNECT POWER BEFORE
XFMR
BK
115V
24V
BR
LIMITS
WH (N)
RD (MED LOW)
OR(MED)
BL (MED HI)
BLOWER
CIRCULATOR
24V THERMOSTAT CONNECTIONS
RO2 (11)
LIMIT
GND (8)
HUMIDIFIER
XFMR (6)
GND
G
C
W
Y
TO
MICRO
R
MVL (2)
MVC (9)
AUXILIARY
LIMIT CONTROLS
PS (10)
PSO (4)
HLI (7)
HLO (1)
CONTROL MODULE
INTEGRATED
NO
SWITCH
PRESSURE
ID BLOWER
VALVE
M1
GAS
C2
C
AUTO RESET
PRIMARY
MANUAL RESET ROLLOUT
LIMIT CONTROL(S)
115 VAC
FLAME SENSOR
FP
XFMR-H
XFMR (3)
RO1 (5)
24 VA C
HOT SURFACE
IGNITER
INTEGRATED CONTROL MODULE
COOL-H
IGN
IND
ID
BLWR
CIRCULATOR
H
E
A
T
-
H
BLWR
TRANSFORMER
40 VA
CONTROL
XFMR-N
INTEGRATED CONTROL MODULE
CIR-N
0140F00658 REV. A
ON SOME MODELS
HUMIDIFIER
24 VA C
INDUCED DRAFT
BLOWER COMPARTMENT
BURNER COMPARTMENT
INTEGRATED CONTROL
INTERNAL TO
BLOWER
PRIMARY LIMIT
WH
GR
BK
IGNITER
SURFACE
HOT
PU
RD
15 PIN PLUG
C
NO
SWITCH
PRESSURE
BR
SENSOR
FLAME
BK
W
H
ROLLOUT LIMITS
RAPID FLASHES = REVERSED 115 VAC POLARITY/VERIFY GND
SYSTEM LOCKOUT (RETRIES/RECYCLES EXCEEDED)
7 FLASHES = LOW FLAME SIGNAL
5 FLASHES = FLAME SENSE WITHOUT GAS VALVE
4 FLASHES = OPEN HIGH LIMIT
3 FLASHES = PRESSURE SWITCH STUCK OPEN
2 FLASHES = PRESSURE SWITCH STUCK CLOSED
STEADY ON = NORMAL OPERATION
OFF = CONTROL FAILURE
5
1 FLASH =
0
1
2
3
4
PU
6 FLASHES =
OPEN ROLLOUT OR OPEN FUSE
COLOR CODES:
PU PURPLE
OR ORANGE
YL YELLOW
6
7
8
BK BLACK
GR GREEN
BR BROWN
PK PINK
RD RED
GY GRAY
BL BLUE
WH WHITE
PU
OVERCURRENT PROTECTION DEVICE
JUNCTION BOX
MUST BE
WARNING:
SWITCH
WIRING TO UNIT
BEFORE SERVICING.
DISCONNECT POWER
LINE-H
DOOR
AND GROUNDED.
POLARIZED
PROPERLY
LGND
LINE-N
DISCONNECT
N
SWITCH (TEMP.)
FIELD SPLICE
SWITCH (PRESS.)
PROT. DEVICE
OVERCURRENT
EQUIPMENT GND
TERMINAL
JUNCTION
HI VOLTAGE FIELD
HI VOLTAGE (115V)
LOW VOLTAGE FIELD
LOW VOLTAGE (24V)
PLUG CONNECTION
IGNITER
FIELD GND
IND-N
IGN-N
JUNCTION
BOX
OVERCURRENT PROTECTION
POWER SUPPLY WITH
TO 115 VA C/ 1/60HZ
GND
LINE-N
LINE H
DEVICE
DOOR SWITCH
WH
BK
SWITCH LOCATED IN BLOWER
COMPARTMENT ON SOME MODELS
RD
RD
BL
PU
YL
OR
BR
(SINGLE CONTROL ON SOME MODELS)
(SINGLE CONTROL ON SOME MODELS)
DIAG NOSTIC
LED
LO HEAT-H
PA RK
SEE NOTE 6
COOL-HHI HEAT-H
978
654
12
CGRWY
5 MIN
2 STG
100 SEC
1 STG
AUTO
150 SEC
MODE
2
N
D
S
T
G
D
L
Y
H
T
O
F
F
D
L
Y
2
1
EAC-HLINE-HXFMR-H
LINE NEUTRAL
FS
1110
321
CONTROL MODULE
INTEGRATED
FUSE
PM
1
HIC
23
2 STAGE
GAS VALVE
(HONEY WELL)
WH
24 VAC
HUMIDIFIER
RD
HI
MVH (12)
H
I
L
O
H
E
A
T
-
H
AIR CLEANER
ELECTRONIC
EAC-N
EAC-H
WH
BL
BR
WH
BL
BK
BK
YL
YL
RD
YL
YL
PU
OR
WH
WH
WH
WH
YL
BL
RD
C
8 FLASHES = CHECK IGNITER OR IMPROPER GROUND
NOTES:
1. SET HEAT ANTICIPATOR ON ROOM THERMOSTAT AT 0.7 AMPS.
2. MANUFACTURER'S SPECIFIED REPLACEMENT PAR TS MUST BE USED WHEN SERVICING.
3. IF ANY OF THE ORIGINAL WIRE AS SUPPLIED WITH THE FURNACE MUST BE REPLACED, IT MUST BE REPLACED WITH
WIRING MATERIAL HAVING A TEMPERATURE RATING OF AT LEAST 105 °C. USE COPPER CONDUCTORS ONLY.
4. BLOWER SPEEDS SHOULD BE ADJUSTED BY INSTALLER TO MATCH THE INSTALLATION REQUIREMENTS SO AS TO
PROVIDE THE CORRECT HEATING TEMPERATURE RISE AND THE CORRECT COOLING CFM. (SEE SPEC SHEET FOR AIR
FLOW CHART)
5. UNIT MUST BE PERMANENTLY GROUNDED AND CONFORM
TO N.E.C. AND LOCAL CODES.
6. TO RECALL THE LAST 5 FAULTS, MOST RECENT TO LEAST RECENT, DEPRESS SWITCH FOR MORE THAN 2 SECONDS
WHILE IN STANDBY(NO THERMOSTAT INPUTS).
YL (LOW)










