
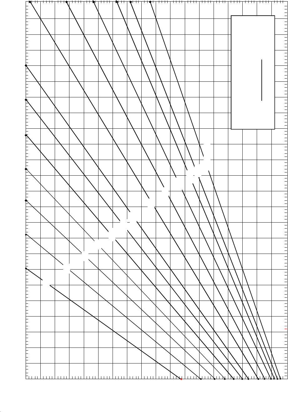
BLOWER PERFORMANCE SPECIFICATIONS
13
30 40 50 60 70 80 90 110 120
100
130 140 150
100
90
80
70
60
50
40
30
20
10
OUTPUT BTU/HR x 1000
BTU OUTPUT vs TEMPERATURE RISE CHART
TEMPERATURE RISE
600 CFM
700
900
1000
1100
1200
1400
1600
1800
2000
2200
2400 CFM
FORMULAS
BTU OUTPUT = CFM x 1.08 x RISE
RISE =
BTU OUTPUT
1.08
รท CFM
800