Manual

21
Cabinet Width
(inches)
Models
(kBTU_Tons)
"X" Length to Cut From Long
End of Hose B
045_30
070_30
070_40
090_40
090_50
115_50
24 1/2 None
17 1/2
21
7 inches
3 1/2 inches
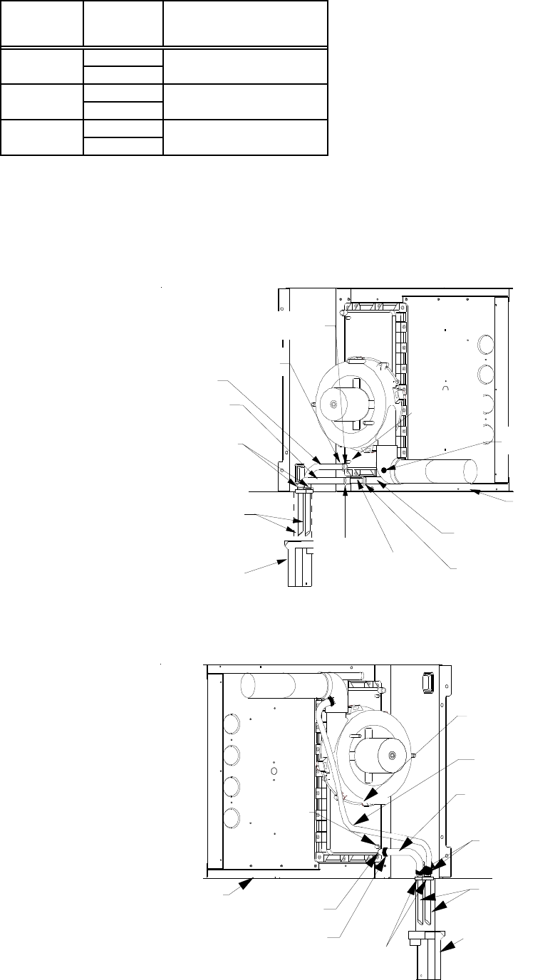
6. Insert short end of each Tube 2 through side panel grommet
holes. Secure tubes to Hose A and Hose B with green hose
clamps. Ensure hoses and tubes maintain a downward
slope for proper drainage and that they are not kinked or
binding.
For details concerning mounting of the drain trap, refer to Section
X, Condensate Drain Lines and Drain Trap - Upright Drain Trap
Mounting.
ALTERNATE VENT/FLUE DRAIN HOSE CONNECTIONS
Upright installations using the alternate vent/flue outlet will require
“right-side only” drain hoses to be connected as follows. Refer to
Section IX, Vent/Flue Pipe and Combustion Air Pipe for details on
alternate vent/flue pipe connection.
1. Remove the rubber plug/cap from the front cover right-side
drain port. Save for use in step 3.
2. Secure Hose A to front cover drain port with a red hose
clamp. Route hose to rear right side panel grommet hole.
3. Remove grommet from front right-side panel drain hole.
Seal hole in grommet with large end of plug. Reinstall
grommet and plug into side panel drain hole.
4. Cut 1/4 inch from the end of the drain port on the externally
mounted rubber elbow. Discard cut portion.
HOSE A
HOSE B
SIDE PANEL
GROMMET
HOLES
GREEN
HOSE
CLAMP
(3 PLACES)
TUBE 1
RUBBER
ELBOW
RIGHT
SIDE
PANEL
DRAIN TRAP
TUBES 2
RUBBER ELBOW
DRAIN PORT
FRONT COVER
DRAIN PORT
FRONT
COVER
PRESSURE
TAP
RED HOSE
CLAMP
SILVER HOSE
CLAMP
Horizontal Connections - Right Side Down
LEFT SIDE
PANEL
FRONT COVER
DRAIN PORT
SIDE PANEL
GROMMET
HOLES
DRAIN TRAP
TUBE(S) 2
GREEN HOSE
CLAMPS
(3 PLACES)
HOSE A
HOSE B
INDUCED
DRAFT BLOWER
DRAIN PORT
FRONT
COVER
PRESSURE
TAP
RED HOSE CLAMP
Horizontal Connections - Left Side Down










