Manual

20
• If an air conditioning coil is installed with the furnace, a
common drain may be used. An open tee must be
installed in the drain line, near the cooling coil, to
relieve positive air pressure from the coil’s plenum.
This is necessary to prohibit any interference with the
function of the furnace’s drain trap.
UPRIGHT I NSTALLATIONS
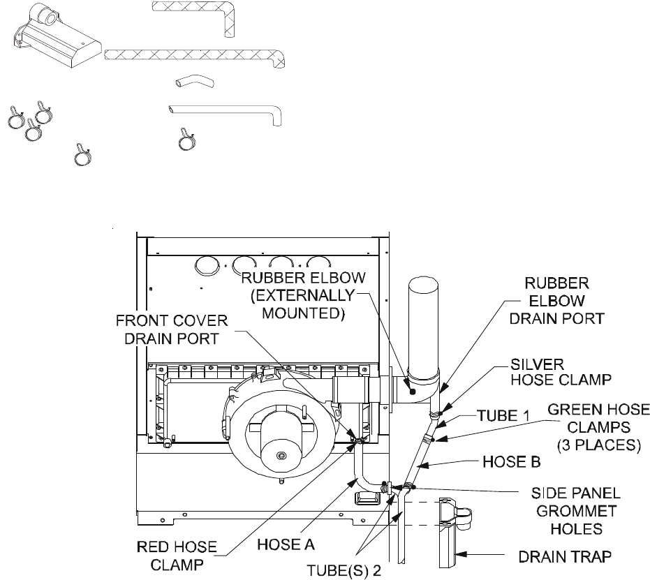
In an upright installation drain hoses are connected to drain ports
on the rubber elbow and the recuperator coil front cover. The drain
lines are then routed through the right or left side panel and into
the drain trap secured to the outside of the cabinet.
NOTE: Refer to Section X, Condensate Drain Lines and Drain Trap
- Alternate Vent/Flue Hose Connections for upright installations
using an alternate vent/flue outlet.
STANDARD RIGHT OR LEFT SIDE DRAIN HOSE CONNECTIONS
Upright installations using the standard vent/flue outlet require
drain hoses to be connected as follows. The following quantity of
hoses, tubes, and hose clamps are provided with the unit.
DRAIN TRAP
QTY: 1
GREEN
HOSE CLAMPS
QTY: 3
SILVER
HOSE CLAMP
QTY: 1
TUBE 2
QTY: 2
TUBE 1
QTY: 1
HOSE B
QTY: 1
HOSE A
QTY: 1
RED
HOSE CLAMP
QTY: 1
Hose and Tube Identification
1. Remove the rubber plug/cap from the front cover drain port
(right or left side, depending on the intended drain trap
mounting).
2. Secure Hose A to front cover drain port with a red hose
clamp. Route hose to rear side panel grommet hole.
NOTE: For left side drainage, grommets will have to be relocated
to left side panel.
3. Cut and remove 1/4 inch from the end of the drain port on
the rubber elbow.
4. Insert Tube 1 into rubber elbow drain port and secure with
silver hose clamp. Angle tube outward toward front of
furnace.
5. Right side drains
Cut 17 3/4 inches from the long end (end opposite the
bend) of Hose B. Save the part with the bend and discard
the 17 3/4 inch piece that was cut. Secure the remaining
hose to Tube 1 with a green hose clamp. Route the other
end of Hose B to front right side panel grommet hole.
Left side drains
Cut “X” inches from the long end of Hose B and discard.
Refer to table for appropriate length to cut. Secure remaining
hose to Tube 1 with a green hose clamp. Route other end
of Hose B to front left side panel grommet hole.
Upright “Alternate” Connections - Right Side Only










