Manual

16
TEE (OPTIONAL)
12 " Min To Roof
Or Highest Anticipated
Snow Level
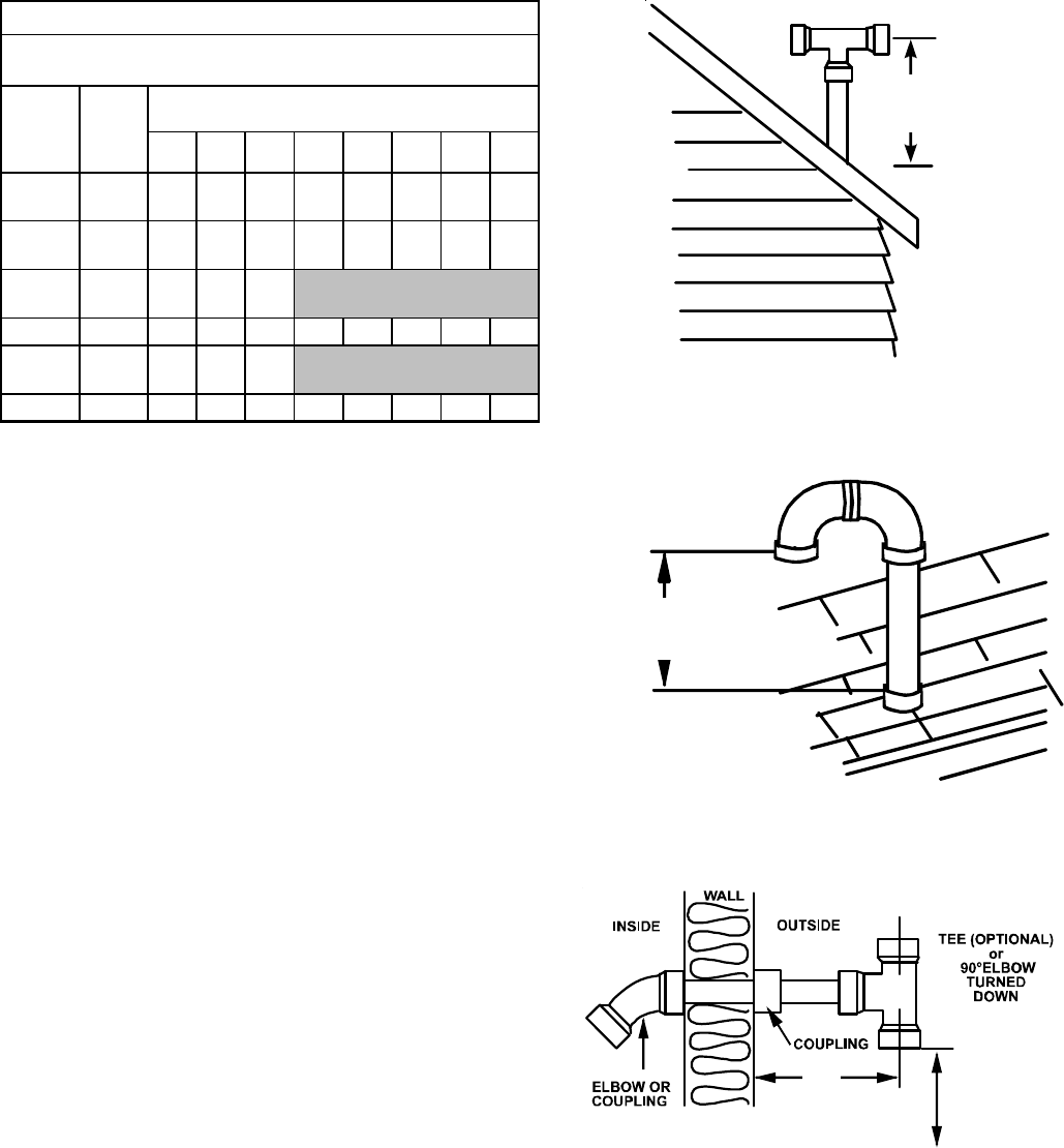
Vertical Termination (Single Pipe)
12" MIN.
TO ROOF OR
HIGHEST
ANTICIPATED
SNOW LEVEL
90º
MEDIUM RADIUS
ELBOWS
Alternate Vertical Termination (Single Pipe)
MIN.
12"
FROM
WALL
12" TO GROUND OR
HIGHEST ANTICIPATED
SNOW LEVEL
Horizontal Termination (Single Pipe)
01234567
45,000
2 or
2 1/2
201 196 191 186 181 176 171 166
70,000
2 or
2 1/2
140 135 130 125 120 115 110 105
90,000
2 or
2 1/2
20 15 10
90,000 3 122 115 108 101 94 87 80 73
115,000
2 or
2 1/2
15 10 5
115,000 3 112105989184777063
Not Applicable
Not Applicable
Direct Vent (2 - Pipe) and Non-Direct Vent (1 - Pipe)
6
Maximum Allowable Length of Vent/Flue Pipe
& Combustion Air Pipe(ft)
(1) (2)
Unit Input
(Btu)
Pipe
Size
(4)
(in.)
Number of Elbows
(3) (5)
1) Maximum allowable limits listed on individual lengths for inlet and flue
and NOT a combination.
2) Minimum requirement for each vent pipe is five (5) feet in length and
one elbow/tee.
3) Tee used in the vent/flue termination must be included when determin-
ing the number of elbows in the piping system.
4) 2 1/2” or 3” diameter pipe can be used in place of 2” diameter pipe.
5) Increased Clearance Configurations using (2) 45 deg.
Long Sweep
elbows should be considered equivalent to one 90 deg. elbow.
6) One 90° elbow should be secured to the combustion air intake con-
nection.
VENT/FLUE PIPE TERMINATIONS
NOTE: If either a 90 degree or 45 degree elbow is used for termi-
nation, it must be pointed downward.
The vent/flue pipe may terminate vertically, as through a roof, or
horizontally, as through an outside wall.
Vertical vent/flue pipe terminations should be as shown in the
following figure. Refer to Section IX, Vent/Flue Pipe and Com-
bustion Air Pipe - Termination Locations for details concerning
location restrictions. The penetration of the vent through the roof
must be sealed tight with proper flashing such as is used with a
plastic plumbing vent.
Horizontal vent/flue pipe terminations should be as shown in the
following figure. Refer to Section IX, Vent/Flue Pipe and Combus-
tion Air Pipe - Termination Locations for details concerning loca-
tion restrictions. A 2 3/8” diameter wall penetration is required for
2” diameter pipe. A 3” diameter hole is required for a 2 1/2” pipe
and a 3 1/2” diameter hole is required for 3” diameter pipe. To
secure the pipe passing through the wall and prohibit damage to
piping connections, a coupling should be installed on either side
of the wall and solvent cemented to a length of pipe connecting
the two couplings. The length of pipe should be the wall thick-
ness plus the depth of the socket fittings to be installed on the
inside and outside of the wall. The wall penetration should be
sealed with silicone caulking material.
In a basement installation, the vent/flue pipe can be run between
joist spaces. If the vent pipe must go below a joist and then up
into the last joist space to penetrate the header, two 45° elbows
should be used to reach the header rather than two 90° elbows.










