Manual

12
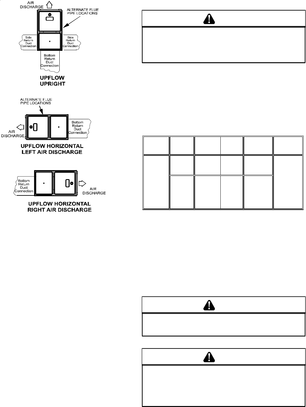
Recommended Installation Positions
NOTE: Alternate “vertical” piping connections can not be used when
an upflow furnace is installed with supply air discharging to the
right. In either case, use the standard flue and combustion air
piping connections.
ALTERNATE E LECTRICAL AND G AS L INE C ONNECTIONS
This furnace has provisions allowing for electrical and gas line
connections through either side panel. In horizontal applications
the connections can be made either through the “top” or “bottom” of
the furnace.
DRAIN PAN
A drain pan must be provided if the furnace is installed above a
conditioned area. The drain pan must cover the entire area under
the furnace (and air conditioning coil if applicable).
FREEZE PROTECTION
Refer to Section VII, Horizontal Applications and Conditions - Drain
Trap and Lines.
FURNACE S USPENSION
If the furnace is installed in a crawl space it must be suspended
from the floor joist or supported by a concrete pad. Never install the
furnace on the ground or allow it to be exposed to water. Refer to
Section IV, Location Requirements and Considerations - Furnace
Suspension for further details.
VIII. PROPANE GAS /HIGH ALTITUDE INSTALLATIONS
P
OSSIBLE
PROPERTY
DAMAGE
,
PERSONAL
INJURY
OR
DEATH
MAY
OCCUR
IF
THE
CORRECT
CONVERSION
KITS
ARE
NOT
INSTALLED
. T
HE
APPROPRIATE
KITS
MUST
BE
APPLIED
TO
ENSURE
SAFE
AND
PROPER
FURNACE
OPERATION
. A
LL
CONVERSIONS
MUST
BE
PERFORMED
BY
A
QUALIFIED
INSTALLER
OR
SERVICE
AGENCY
.
WARNING
This furnace is shipped from the factory configured for natural gas
at standard altitude. Propane gas installations require an orifice
change to compensate for the energy content difference between
natural and propane gas.
High altitude installations may require both a pressure switch and
an orifice change. These changes are necessary to compensate
for the natural reduction in the density of both the gas fuel and the
combustion air at higher altitude.
For installations above 7000 feet, please refer to your distributor
for required kit(s).
Altitude Gas Kit Orifice
Manifold
Pressure
Pressure
Sw itch
1
Supports White-Rodgers 1-stage valve only
2
Supports both Honeyw ell and White-Rodgers 1-stage valves
Propane
LPT-00*
1
LPT-03*
2
#55 10.0" w .c.
NOTE: In Canada, gas furnaces are certified to 4500 feet.
0-7000
Natural None #43 3.5" w .c.
None
Contact the distributor for a tabular listing of appropriate
manufacturer’s kits for propane gas and/or high altitude installa-
tions. The indicated kits must be used to insure safe and proper
furnace operation. All conversions must be performed by a quali-
fied installer, or service agency.
IX. VENT/FLUE PIPE & COMBUSTION AIR PIPE
GENERAL
F
AILURE
TO
FOLLOW
THESE
INSTRUCTIONS
CAN
RESULT
IN
BODILY
INJURY
OR
DEATH
. C
AREFULLY
READ
AND
FOLLOW
ALL
INSTRUCTIONS
GIVEN
IN
THIS
SECTION
.
WARNING
U
PON
COMPLETION
OF
THE
FURNACE
INSTALLATION
,
CAREFULLY
INSPECT
THE
ENTIRE
FLUE
SYSTEM
BOTH
INSIDE
AND
OUTSIDE
OF
THE
FURNACE
TO
ASSURE
IT
IS
PROPERLY
SEALED
. L
EAKS
IN
THE
FLUE
SYSTEM
CAN
RESULT
IN
SERIOUS
PERSONAL
INJURY
OR
DEATH
DUE
TO
EXPOSURE
TO
FLUE
PRODUCTS
,
INCLUDING
CARBON
MONOXIDE
.
WARNING










