User Manual

17
221781A
5079
8 Servicing
Diagram 8.9
Diagram 8.8
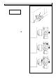
Diagram 8.6
Diagram 8.7
5201
1620
1621
FLUE
BAFFLE
FLUEWAYS
FLUE COLLECTOR
ASSEMBLY
SECURING
SCREW
STAINLESS STEEL
SECURING SCREWS(2)
GUIDE
CHANNELS
FLUE
BAFFLE
DIVERTER
PLATE
FIRE FRONT
SENSING TUBE
SECURING
SCREW (2)
9.1 Notes on Replacing Parts.
(a) Replacement of parts must be carried out by a competent
person.
(b) Unless stated otherwise all parts are replaced in the reverse
order to that of removal.
(c) After replacing any gas carrying parts always test for gas
soundness using a suitable leak detection fluid. Also carryout
functional check of controls.
(d) Refer to the Gas Fire Front Installation Instructions for
details of the removal of the fire front.
(e)
Isolate the electrical supply to the back boiler.
(f) Remove the gas fire front plinth.
(g) Refer to diagram 6.1 to identify the back boiler controls.
Turn the gas valve control knob “A” clockwise to
“Off”
position. Turn the appliance gas service cock anticlockwise to
“Off” position, see diagram 6.2.
9 Replacement of Parts
8033
Diagram 9.1
PIEZO
UNIT
IGNITION LEAD
(BLACK END)
RETAINING
TABS