Installation Guide
Manuals
Brands
Global Door Controls Manuals
Kitchen
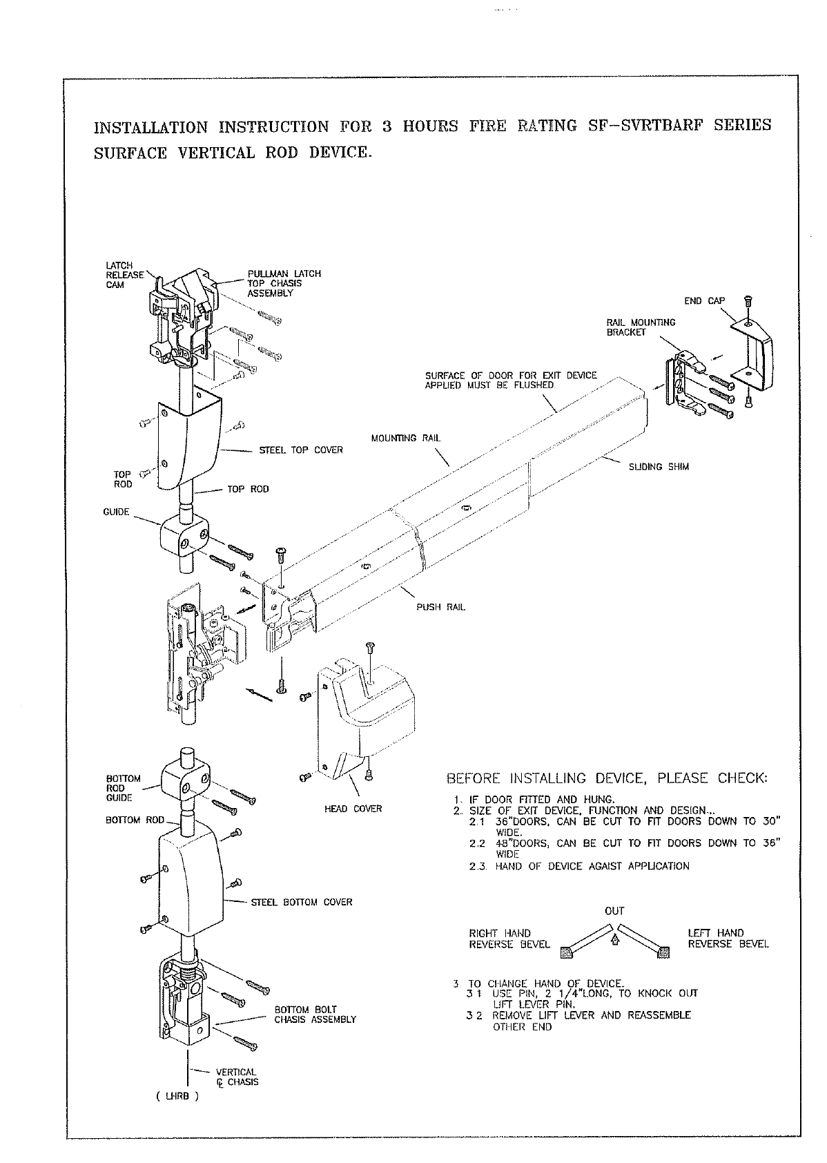
36 in. Stainless Steel Fire Rated Touch Bar Exit Device
1
2
3
4
5
1
2
3
4
...
5
Summary of content (5 pages)
PAGE 1
PAGE 2
PAGE 3
PAGE 4
PAGE 5