Product Manual
Manuals
Brands
Genie Manuals
Hoists, Lifts + Cranes
DC Aerial Work Platform with Sliding Mid-Rail Entry — 24ft. 10In. Lift, 350-Lb. Capacity
11
12
13
14
15
16
17
18
19
20
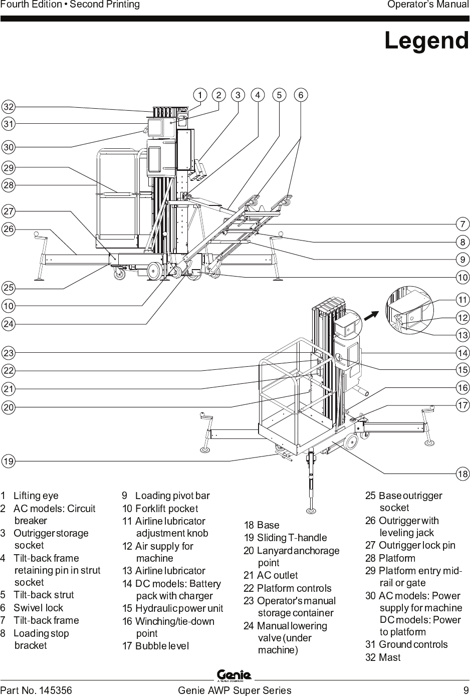
1
...
...
9
10
11
12
13
...
...
36