Installation Guide
Table Of Contents
- Installation Guidelines 60 Hz Air-Cooled Generators
- Table of Contents
 - Section 1: Safety Rules & General Information
 - Section 2: Unpacking and Inspection
 - Section 3: Site Selection and Preparation
 - Section 4: Generator Placement
 - Section 5: Fuel Conversion / Gas Connections
 - Section 6: Electrical Connections
 - Section 7: Control Panel Startup / Testing
 - Section 8: Troubleshooting
 - Section 9: Quick Reference Guide
 - Section 10: Accessories
 - Section 11: Diagrams
 
 

Diagrams
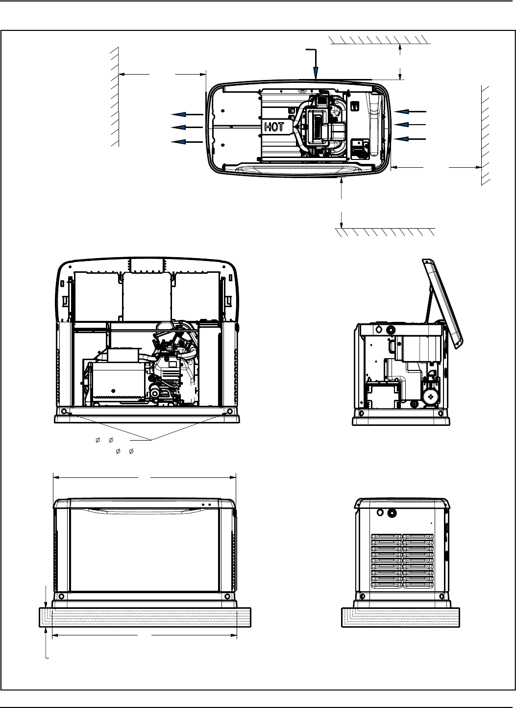
50 Installation Guidelines for 60 Hz Air-Cooled Generators
Installation Drawing (A0000973347 rev A—2 of 2)
1218
[48.0]
1232
[48.5]
914 [36.0]
MINIMUM OPEN AREA 
457 [18.0]
MINIMUM OPEN AREA
914 [36.0]
MINIMUM OPEN AREA 
914 [36.0]
MINIMUM OPEN AREA
127 [5.0]
GRAVEL PAD/
COMPACTED SOIL
TITLE
AIR OUTLET
AIR INTAKE
AIR INTAKE
TOP VIEW
RIGHT SIDE VIEW
RIGHT VIEW 
INTAKE PANEL REMOVED 
"DO NOT LIFT BY ROOF"
LIFTING HOLES 4 CORNERS:  30 [ 1.2] 
- MUST BE LIFTED WITH STEEL RODS
- RECOMMENDED LIFTING ROD SIZE: 
25 [ 1.0]
FRONT VIEW










