Installation Guide
Table Of Contents
- Installation Guidelines 60 Hz Air-Cooled Generators
- Table of Contents
- Section 1: Safety Rules & General Information
- Section 2: Unpacking and Inspection
- Section 3: Site Selection and Preparation
- Section 4: Generator Placement
- Section 5: Fuel Conversion / Gas Connections
- Section 6: Electrical Connections
- Section 7: Control Panel Startup / Testing
- Section 8: Troubleshooting
- Section 9: Quick Reference Guide
- Section 10: Accessories
- Section 11: Diagrams

Diagrams
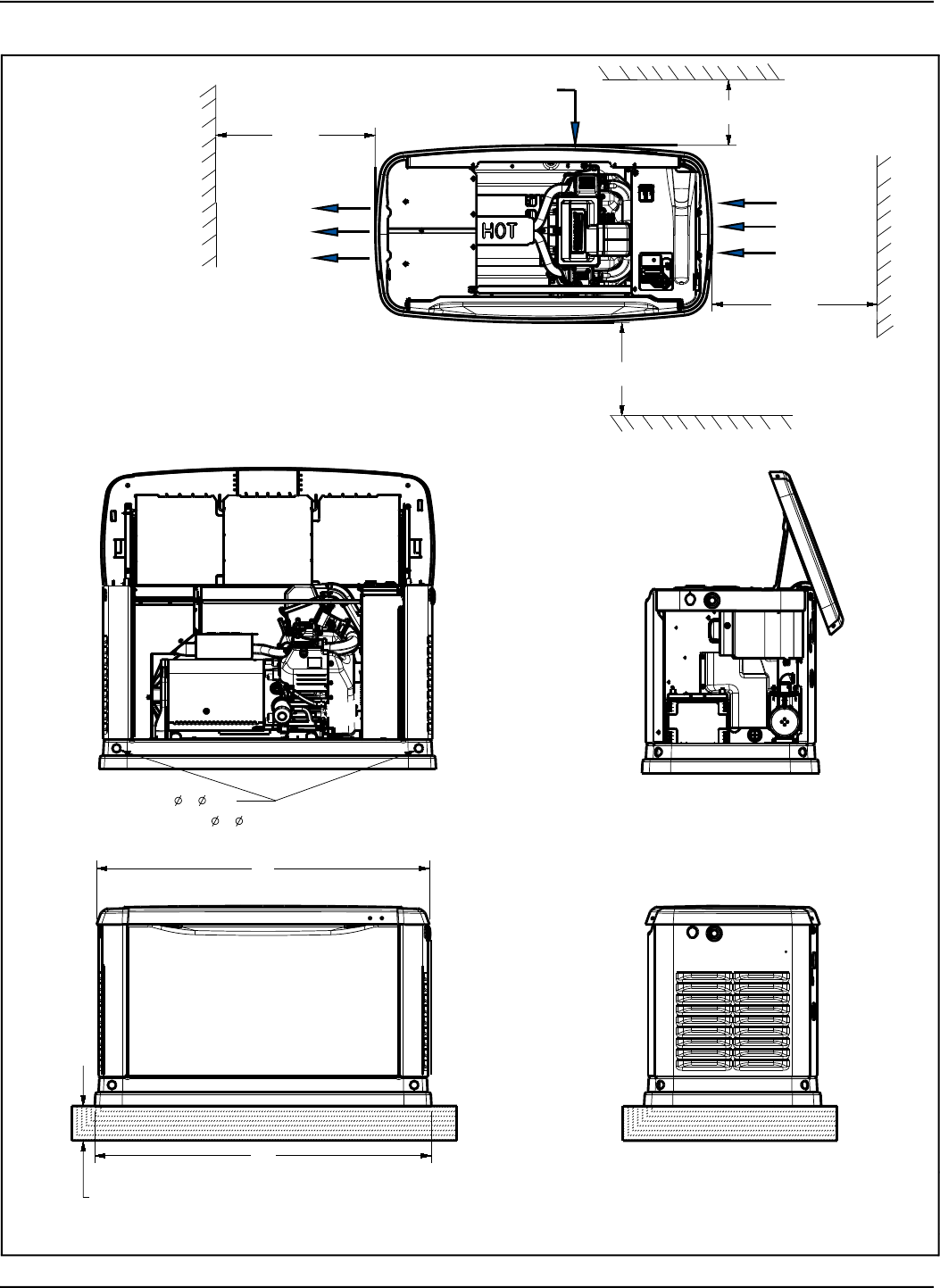
50 Installation Guidelines for 60 Hz Air-Cooled Generators
Installation Drawing (A0000973347 rev A—2 of 2)
1218
[48.0]
1232
[48.5]
914 [36.0]
MINIMUM OPEN AREA
457 [18.0]
MINIMUM OPEN AREA
914 [36.0]
MINIMUM OPEN AREA
914 [36.0]
MINIMUM OPEN AREA
127 [5.0]
GRAVEL PAD/
COMPACTED SOIL
TITLE
AIR OUTLET
AIR INTAKE
AIR INTAKE
TOP VIEW
RIGHT SIDE VIEW
RIGHT VIEW
INTAKE PANEL REMOVED
"DO NOT LIFT BY ROOF"
LIFTING HOLES 4 CORNERS: 30 [ 1.2]
- MUST BE LIFTED WITH STEEL RODS
- RECOMMENDED LIFTING ROD SIZE:
25 [ 1.0]
FRONT VIEW










