Installation Guide

Table Of Contents
Diagrams
50 Installation Guidelines for 60 Hz Air-Cooled Generators
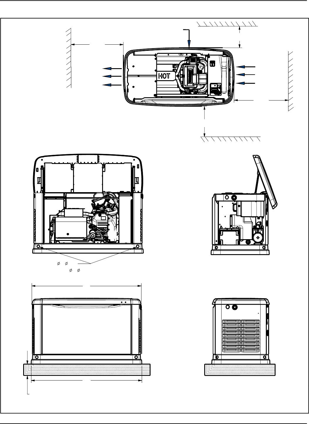
Installation Drawing (A0000973347 rev A—2 of 2)
1218
[48.0]
1232
[48.5]
914 [36.0]
MINIMUM OPEN AREA
457 [18.0]
MINIMUM OPEN AREA
914 [36.0]
MINIMUM OPEN AREA
914 [36.0]
MINIMUM OPEN AREA
127 [5.0]
GRAVEL PAD/
COMPACTED SOIL
TITLE
AIR OUTLET
AIR INTAKE
AIR INTAKE
TOP VIEW
RIGHT SIDE VIEW
RIGHT VIEW
INTAKE PANEL REMOVED
"DO NOT LIFT BY ROOF"
LIFTING HOLES 4 CORNERS: 30 [ 1.2]
- MUST BE LIFTED WITH STEEL RODS
- RECOMMENDED LIFTING ROD SIZE:
25 [ 1.0]
FRONT VIEW