User Guide

COLD WEATHER KIT
For cold climates, optional cold weather kit (part
number 0F6148) is recommended. The kit includes:
• Battery Warmer
• 4” Junction Box with hardware
• 6 qt. pack 5W-30 synthetic oil (engine)
RECONFIGURING THE FUEL SYSTEM
NOTE:
All models are configured for natural gas or LP
vapor from the factory.
To reconfigure the fuel system from NG to LP, follow
these steps:
1. Turn the main gas supply off.
2. Remove the carburetor fuel hose from the outlet
port (Port 1) of the demand regulator (Figure
6.2).
3. Remove the brass hose fitting from the outlet port
(Port 1) of the demand regulator.
4. Remove pipe plug from Port 2.
5. Install brass hose fitting into Port 2.
6. Install pipe plug into Port 1.
7. Connect carburetor gas hose to brass fitting.
8. Tighten all clamps and plugs.
9. Make sure fuel supply is of the proper pressure
and type for configuration.
10. Reverse the procedure to convert back to natural
gas.
11. The Dip switch inside the control panel must be
in the LP or NG position when switching to differ-
ent fuels.
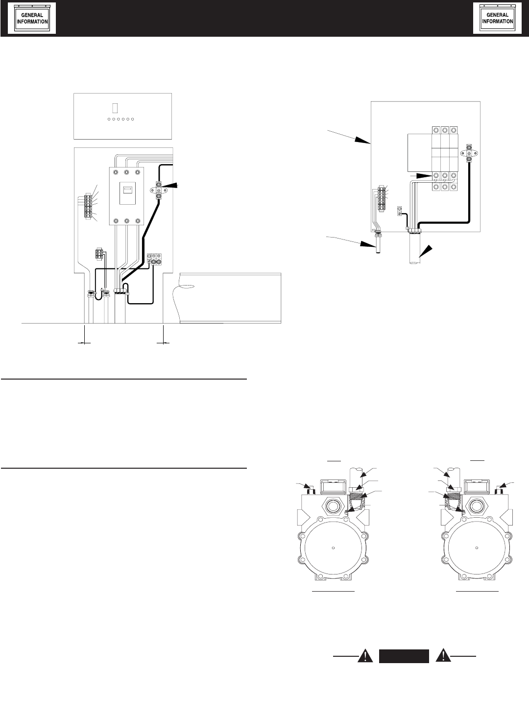
Figure 6.2 — Reconfigure the Fuel System
NG FUEL SYSTEM
LP FUEL SYSTEM
Port 1
Port 2
FUEL HOSE
BRASS HOSE
FITTING
HOUSING
PORTS
OUT
PORT 2
PLUG
FUEL HOSE
BRASS HOSE
FITTING
HOUSING
PORTS
PLUG
OUT
PORT 1
NOTE:
Port 1 is for NG only and Port 2 is for LP vapor
only. No provision for dual fuel has been made.
DANGER
Serious injury or damage may occur if not con-
figured properly. Please consult an Authorized
Dealer with any questions.
TO
ALTERNATOR
NEUTRAL
GROUND
CIRCUIT
BREAKER
NEUTRAL
Ground Level
Concrete Slab
STUB-UP AREA
See Install Dwg for
Dimensions
CONTROL PANEL
GENERATOR
CONNECTION
BOX
FRAME RAIL
N1
N2
23
194
186
178
To Generator Control Panel
Utility In
Load
Out
Gen
N1
N2
23
194
183
178
120 Volt +
Neutral
Grd
Battery
Charger
Input
Transfer Switch
CIRCUIT BREAKER SIZE
KW VOLTS / AMPS LUG SIZE
20 240 1 Ø 100 #4 to 1/0
20 208 3 Ø 80 #4 to 1/0
4- # 14 GA
WIRES TO
GENERATOR
CONNECTION
BOX
TO GENERATOR
CONNECTION BOX
Figure 1 — Interconnections
6-2
Standby Generator Sets
Specifications
GenSpec013 Rev. B 11/05










