Owner's Manual Hub/Switch 004635-3, 004678-2

14 Generac
®
Power Systems, Inc.
25
3
8
4
9
6
7
20
19
15
23
2
26
13
21
16
11
10
36
24
3
7
3
1
22
14
13
18
3
2
35
3
4
33
28
29
12
17
3
5
30
2
1
4
30A,
30A,
0735
0735
30A,600V
30A,
600V
073591
-
T
073591T
(
GROUND LUG ASSEMBLY
)
DETAIL A
-
A
E
N
C
L
OSU
RE
N
OTE: TOR
Q
UE ITEM #3 TO 24-30 IN.LBS
DETAIL B
-
B
(
POWER TERMINAL LUG ASSEMBLY
)
B
B
B
CS3-8X16T
CS38X16T
8X16T
CS3-8X16T
CS38X16T
8X16T
0
A
95
17
W
AUKESHA
,
WI.
O
R AL
U
MIN
U
M WIRE
O
F AT LEA
S
T 7
5
˚
C
RATIN
G
A
LL TERMINAL
S
L
UGS
ARE
SU
ITABLE F
O
R
CO
PPER
R
ATIN
G
S
WIT
C
H
#0
7
98
44
O
R #
0
7
5595
0
R #
083
4
9
4
GENERAC POWER SYSTEMS
,
INC.
M
AXIM
U
M V
O
LT
S
M
AXIM
U
M AMP
S
1
2
0/
24
0
***
*****
63378T
63378
-
T
63378T
63378
-
T
*****
****
*****
**
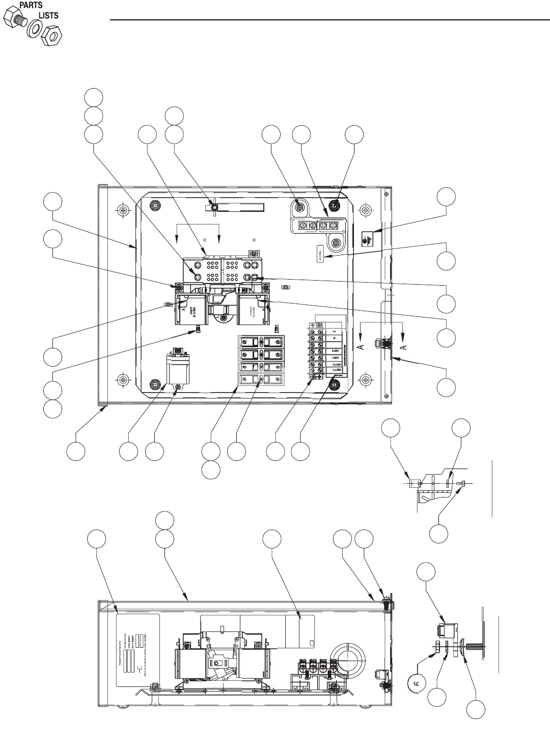
Section 7 — Exploded Views and Parts List
Generac GTS “HS” Type Transfer Switch
100A Transfer Switch Assembly – Drawing No. 0E8403$-B










