Owner's Manual Hub/Switch 004635-3, 004678-2
Manuals
Brands
Generac Manuals
Switch
004635-3
11
12
13
14
15
16
17
18
19
20
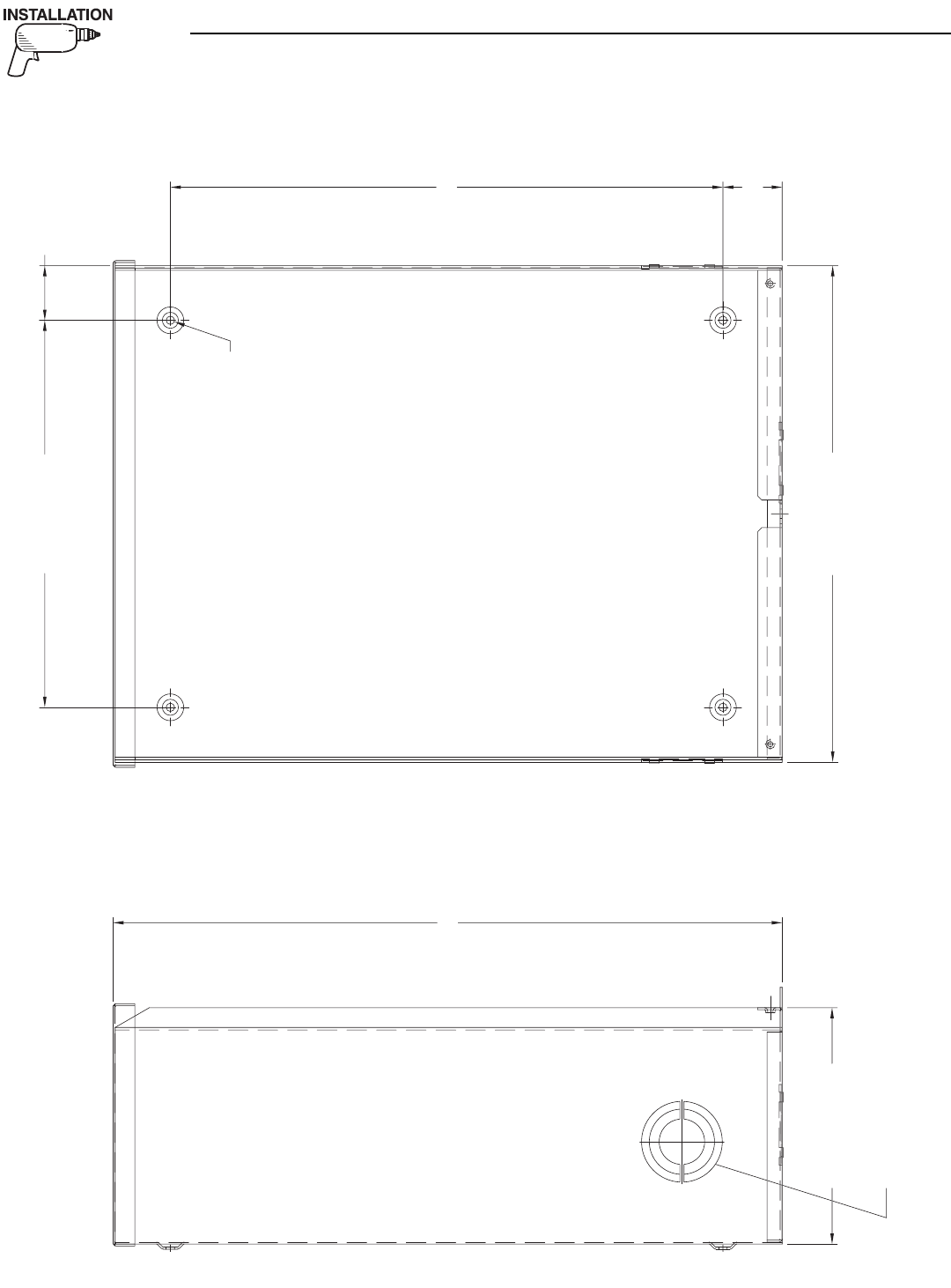
Section 5 — Installation Diagram
Generac GT
S “HS” T
ype T
ransfer Switch
Drawing No. 0E7
08
1
3
77mm
[
14.84"
]
5
08.5mm
[
20.02"
]
KN
OC
K
OU
T
SU
ITABLE F
OR
1
"
,
1-1/2" AND 2" CONDUIT SIZE
3
PLA
C
E
S
1
79.5mm
[
7.07"
]
4
20mm
[
16.54"
]
4
5mm
[
1.77"
]
4
1.5mm
[
1.63"
]
2
94mm
[
11.57"
]
Ø
6
.3mm
[
Ø
0
.25"
]
10
Generac
®
Pow
er Systems, Inc.
1
...
...
10
11
12
13
14
...
...
20