User manual

S
WIT
C
H I
S
F
O
R
US
E WITH
CO
NTR
O
L M
O
D
U
LE A
SS
EMBLY
#
079844
,
#075595
,
AND #083494
T
RAN
S
FER
S
WIT
CH
W
AUKESHA WI
,
53187
G
ENERA
C
P
O
WER
S
Y
S
TEM
S
0
E4
3
1
3
3
4
23
14
LO
AD 2
LO
AD 1
194
23
27
16
30
22
17
35
33
20
3
1
3
2
6
12
15
23
29
14
28
6
24
19
11
18
7
13
25
3
7
N
E
U
TRA
L
9
40
8
38
2
10
1
13
4
3
5
26
21
O
N
U
TILITY
0C888
4-L
S
0C
7
90
7H-
S
0C7907H-S
0C7907H-S
A
A
(
GROUND LUG ASSEMBLY
)
DETAIL A
-
A
E
N
C
L
OSU
RE
C8308X
C8308X
C8308X
0
D4
5
4
5
0A9949
-
S
0A9949S
0A9949
-
T
0A9949T
SU
PPLIED W
/S
WIT
C
H
H
ANDLE P
/
N
0633
21
0A9949-S
0
0A9949S
0A9949-
S
R
eplace with UL
l
i
s
t
ed
f
use
o
f
sa
m
e
6
00 Volt, 5 am
p
.
t
ype and ratin
g
0
D
3587
63378T
63378
-
T
63378T
63378
-
T
0A9949
-
T
0A9949T
14 Generac
®
Power Systems, Inc.
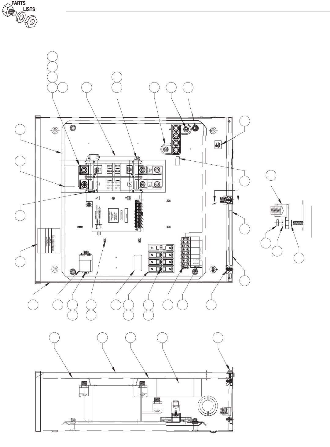
Section 6 — Exploded Views and Parts List
Generac GTS “W” Type Transfer Switch
200 A, 2Pole Switch Assembly – Drawing No. 0E2868$-D










