User Manual

49-80777 Rev. 3 11
INSTRUCCIONES DE INSTALACIÓN
Preparación para la instalación
PREPARANDOSE PARA LA INSTALACIÓN
• Desembale la superficie de cocción y lea las Instrucciones
de Instalación a fin de entender las dimensiones
necesarias requeridas para la mesada y su ubicación,
el espacio entre la superficie de cocción y el extremo
frontal de la mesada, y los despejes necesarios con los
gabinetes y paredes. El ancho del espacio requerido
para el sistema de ventilación se muestra en la página 4.
Confirme que haya suficiente espacio entre un lado y otro
para contar con los espacios y despejes necesarios para
la superficie de cocción.
• Utilizando las siguientes ilustraciones y tomando las
medidas de la superficie de cocción para establecer
la dimensión A, confirme que haya suficiente espacio
entre el frente y la parte trasera (dimensión B) para
colocar tanto la superficie de cocción como el sistema
de ventilación. Observe que el extremo trasero de la
superficie de cocción se superpondrá con la superficie
frontal del sistema de ventilación (consulte la Página 5).
• De ser necesario más espacio para la mesada, consulte
la sección de Soluciones Creativas en la página 8.
• Utilizando las ilustraciones en las páginas 5 y 7 y
tomando las medidas del sistema de ventilación y la
ubicación de la salida de la ventilación, confirme los
espacios necesarios dentro del gabinete, la dirección
del escape de la ventilación, y la alineación del escape
de la ventilación con el conducto. De ser necesario
para el despeje o la alineación del enlace del conducto,
reposicione la ubicación de la superficie de cocción, o
modifique la ubicación de los muebles, o la tubería.
• Confirme que los receptáculos eléctricos y las tuberías de
gas estén correctamente ubicadas, y vuelva a ubicar las
mismas de ser necesario.
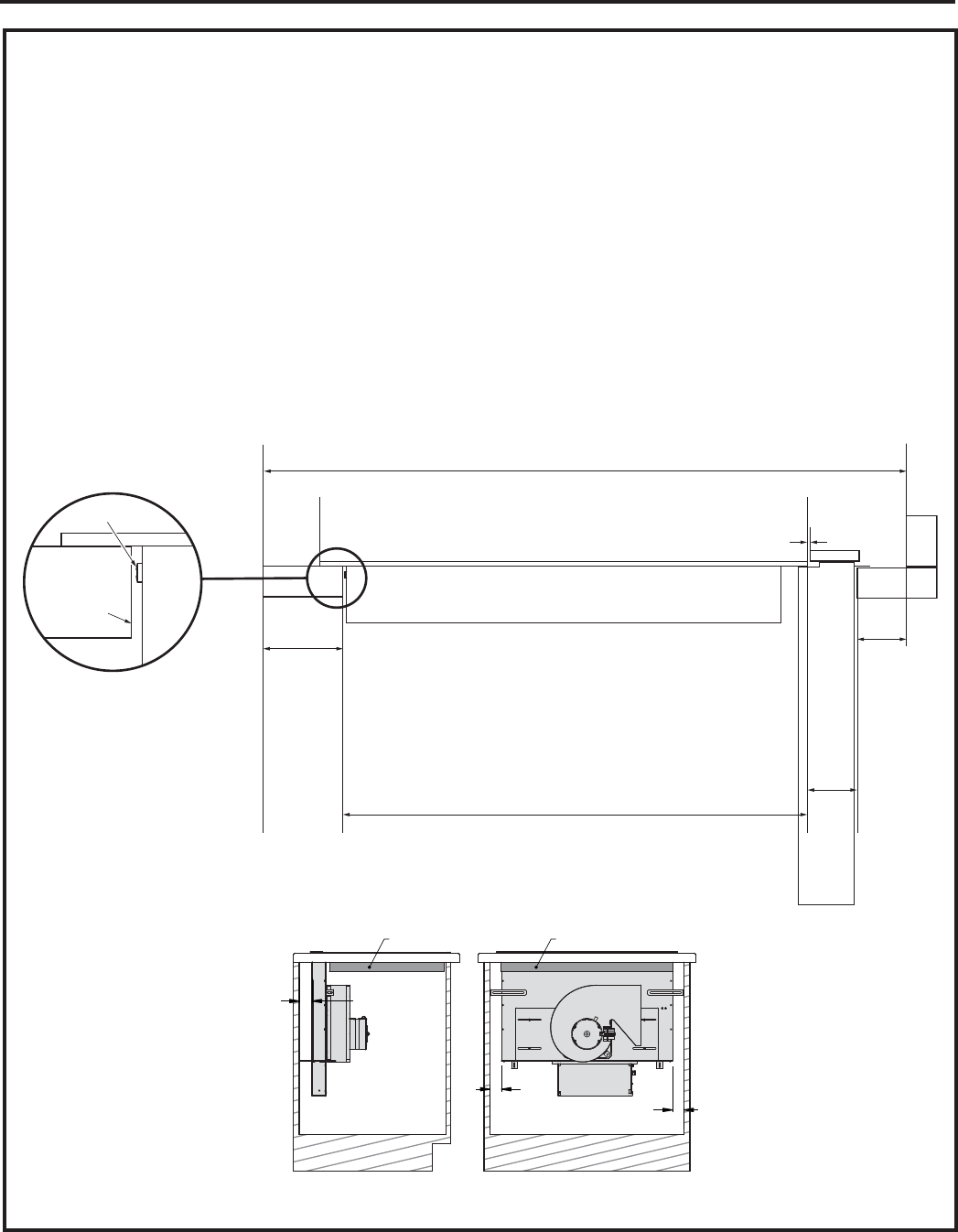
B
C
B es la dimensión mínima de la parte
plana de la mesada que es necesaria
A
A es la dimensión desde la cabeza del tornillo en la superficie frontal de la base de la superficie
de cocción hasta el extremo trasero de la superficie de cocción. Si no puede encontrar la dimensión
A en las instrucciones de instalación de la superficie de cocción, entonces deberá medirla.
La profundidad del recorte es A + 2 1/8”
La profundidad mínima de la mesada es B = A + C + 2.5”
La dimensión C está definida en las Instrucciones
de Instalación de la superficie de cocción
SUPERFICIE DE COCCIÓN
Mínimo de 1/8”
Extremo frontal
de la mesada
Frente del recorte
en la mesada
Cabeza del tornillo
Extremo
frontal de
la superficie
de cocción
Frente del recorte
en la mesada
Extremo trasero de
la superficie de cocción
Parte Trasera
del Recorte
en la mesada
2 1/8”
Mínimo
de 3/8”
V
e
n
t
i
l
a
c
i
ó
n
d
e
A
i
r
e
D
e
s
c
e
n
d
e
n
t
e
Vista Lateral: Ventilación Instalada Vista Frontal: Ventilación Instalada
Superficie de cocción Superficie de cocción
Máx. de 4 1/2"
Máx.
de 5 1/2"
Máx.
de 5 1/2"










