User Manual

49-80777 Rev. 3 11
INSTALLATION INSTRUCTIONS
Installation Preparation
PREPARING FOR INSTALLATION
• Unpack the cooktop and read the Installation
Instructions to understand the required countertop
cutout dimensions and location in the countertop,
the cooktop spacing to the front edge of the
countertop, and the required clearances to the
cabinets and walls. The vent system required cutout
width is shown on page 4. Confirm there is enough
side to side counter space to meet the required
spacing and clearances for the cooktop.
• Using the illustrations below and taking
measurements of the cooktop to establish dimension
A, confirm there is enough front to back counter
space (dimension B) to fit both the cooktop and the
vent system. Note the cooktop rear edge will overlap
the vent system front surface (refer to Page 5).
• Refer to the Creative Solutions section on page 8 if
more counter space is needed.
• Using the illustrations on pages 5 through 7 and
taking measurements of the vent system and its
exhaust vent location, confirm the clearances
needed within the cabinet, the exhaust vent
direction, and the alignment of the exhaust vent with
the ducting. If needed for clearance or duct hookup
alignment, reposition the location of the cooktop, or
modify the cabinetry, or modify the ducting.
• Confirm the electrical receptacles and gas lines are
correctly located, and relocate if needed.
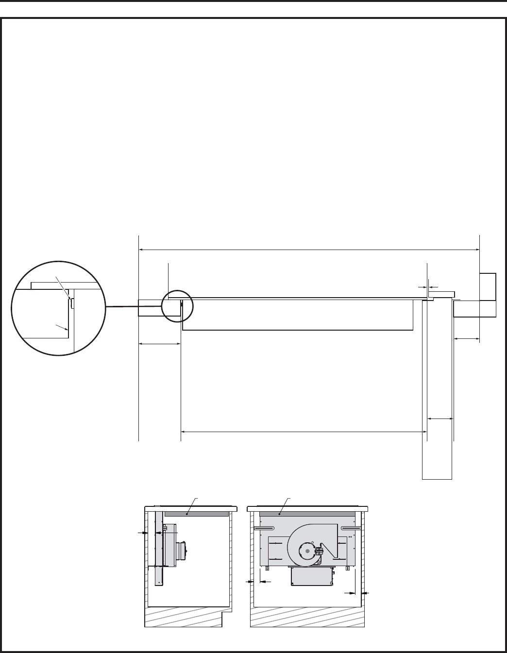
Side View: Installed Vent Front View: Installed Vent
Cooktop Cooktop
4-1/2” Max
5-1/2”
Max
5-1/2”
Max
B
C
B is the minimum dimension of the
flat portion of countertop that is needed
A
A is the dimension from the screw head on the front surface of
the cooktop base to the rear edge of the cooktop. If you cannot find dimension A
in the cooktop installations instructions, then you must measure it.
Depth of cutout is A + 2 1/8”
Minimum counter depth B = A + C + 2.5"
Dimension C is defined in cooktop Installation Instruction
COOKTOP
1/8” minimum
Front edge
of countertop
Front of cutout
in countertop
Screw head
Front
edge
of
cooktop
Front of cutout
in countertop
Back edge
of cooktop
Back of cut
in countertop
2 1/8”
3/8”
minimum
D
o
w
n
d
r
a
f
t
V
e
n
t










