
10 49-80777 Rev. 3
Installation Preparation
INSTALLATION INSTRUCTIONS
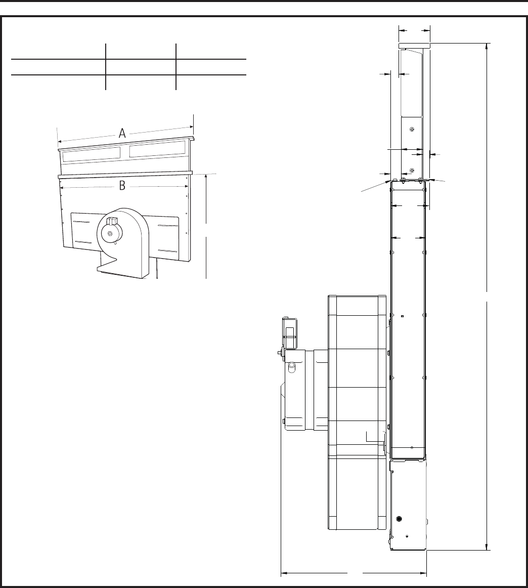
PRODUCT DIMENSIONS
AB
30” Models 30” 28-5/16”
36” Models 36” 33-15/16”
9.3
.45
1.40
.68
2.24
2.49
32.36
.52
NOTE: The cooktop
overlaps this surface.
NOTE:
This flange
sits on the
countertop.
2.01
23-5/8"