Owners Manual

18 49-2000708 Rev. 2
INSTALLATION INSTRUCTIONS
Installation Instructions
4
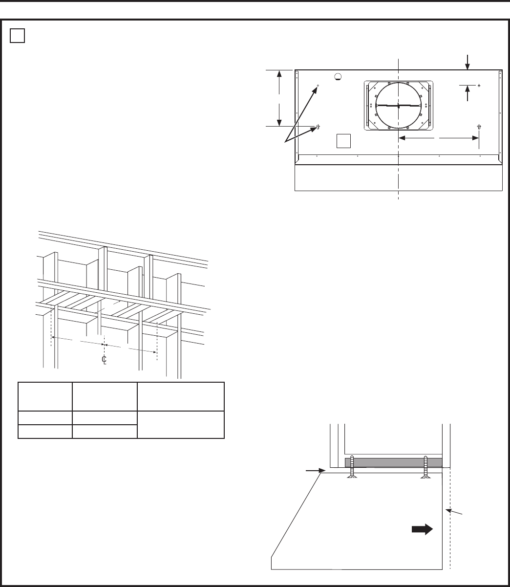
(Alternate Mounting Method) INSTALL HOOD TO SOFFIT OR CABINET
SKIP THIS STEP IF USING WALL MOUNTING
METHOD
IMPORTANT: Soffit or cabinet framing must be
capable of supporting 100 lbs.
When necessary the hood may be installed so that it is
supported by the soffit or cabinet.
• The soffit should be constructed with 2"x4"s.
• Use a level to draw the cooktop or range center line.
• Continue the centerline forward on the bottom of the
soffit.
• Install horizontal wood supports between the 2"x4",
at distance A to the left and right, as per the table
below.
• Drill two 1/8” pilot holes at a distance of 10” from the
back wall in the horizontal wood supports. This is the
vertical distance between mounting keyholes and
back wall as shown in Figure C.
• Drill two more 1/8” pilot holes at a distance of 2-3/4”
from the back wall in the horizontal wood supports.
This is the vertical distance between mounting screw
holes and back wall as shown in Figure C.
• For top venting, allow minimum opening (Dim. B) to
accommodate damper in soffit or cabinet.
• Drive mounting Screws (A) into the studs until they
protrude 1/4". This 1/4" gap will provide clearance to
engage the keyhole slots in the top of the hood.
• The hood must also be secured to the back wall.
Follow instructions on page 17, "Drill Bottom
Mounting Hole Locations", for installation to the
back wall.
• Follow instructions on page 16 “House Wiring
Locations” for wiring setup.
• Lift hood onto mounting screws. Slide back against
the rear wall.
• Pull house wiring through the knockout at the rear or
top of the hood.
• Tighten mounting screws (A).
• Once the hood is secured to the soffit or cabinet,
drive screws (C) to secure the hood to the back wall.
B
A
A
“A”
Centerline to
Center of Stud
“B”
Opening for
Ductwork
30” Models 8-3/4"
8-3/8" x 11-1/4"
36” Models 14"
1/4” Gap
Soffit or Cabinet
Back
Wall
Engage Keyhole Slots
and Push Back at Wall
Back Wall
Figure C
10"
2-3/4"
A
Keyholes
for Soffit
or Cabinet
Mounting










