Owners Manual

16 49-2000708 Rev. 2
Installation Preparation
INSTALLATION PREPARATION
DETERMINE HOOD, DUCTWORK AND WIRING LOCATIONS (Cont.)
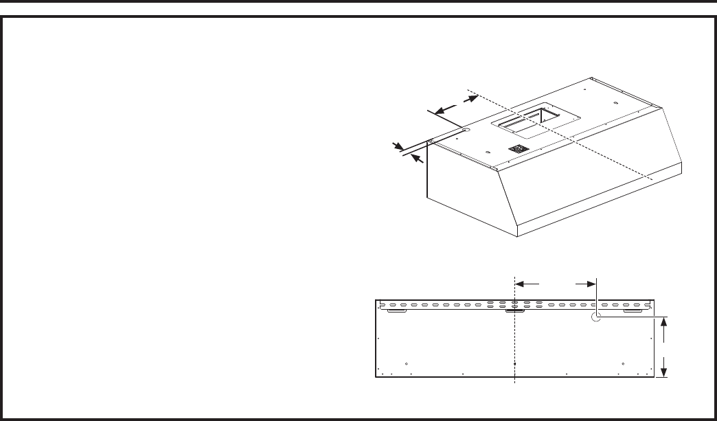
House Wiring Location:
• The junction box is located inside the hood body
on the left side. See Illustrations for hood knockout
locations.
House wiring may enter the junction box from the rear
or the top of the hood at the right side.
To route house wiring through the ceiling,soffit, or
cabinet:
• Cut a hole approximately 1-1/4" dia., forward on
the ceiling at a distance 9-3/4" to the left of the
centerline.
To route house wiring through the wall:
• Measure 7-3/4” from the bottom of the hood. and
mark location.
• Cut a hole approximately 1-1/4” dia., at the marked
location at a distance 9-3/4" to the left of the
centerline.
• Remove top or rear knockout depending on your
installation.
1-1/4"
Top View
Rear View
9-3/4"
7-3/4"
9-3/4"










