Quick Specification

DIMENSIONS AND INSTALLATION INFORMATION (IN INCHES)
PYD22KBL/KYN
GE Profile
™
Series
22.1 Cu. Ft. Counter-Depth French-Door Refrigerator with Door In Door
For answers to your Monogram, GE Café
™
Series, GE Profile
™
Series or
GE Appliances product questions, visit our website at geappliances.com
or call GE Answer Center
®
Service, 800.626.2000.
Specification Created 01/20
Listed by
Underwriters
Laboratories
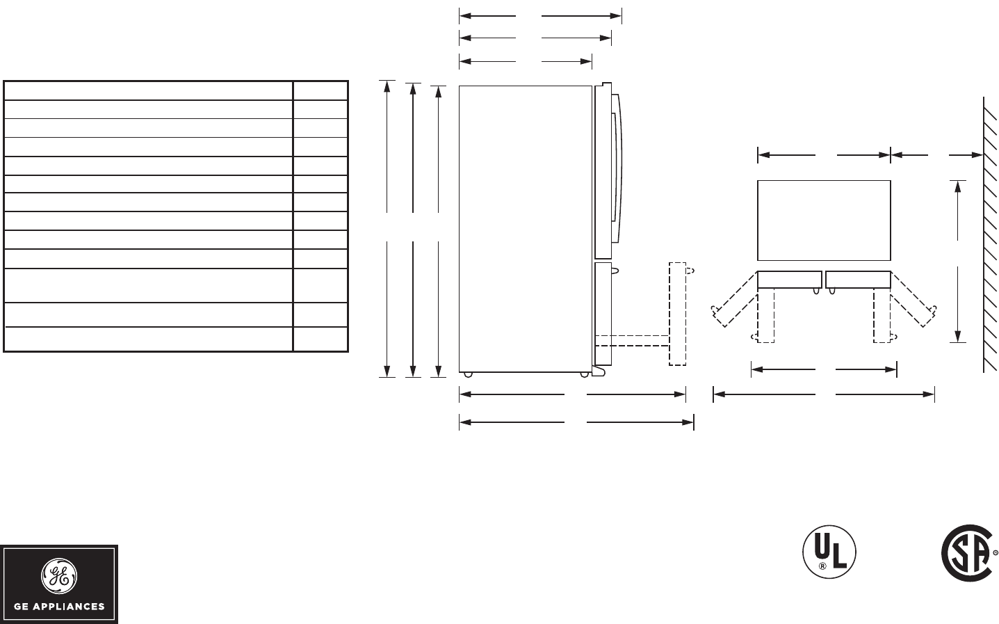
Height to top of door (in.) A
Height to top of hinge (in.) B
Height to top of case (in.) C
Case depth without door (in.) D
Case depth less door handle (in.) E
Case depth with door handle (in.) F
Depth with fresh food door open 90˚ (in.) G
Width (in.) H
Width with door open 90˚ with door handle (in.) I
Width with doors open fully (in.) J
Min distance between side of case and wall, in
either direction, to allow doors to open fully (in.) K
Depth with FZ door completely open (w/o handle) (in.) X
Depth with FZ door completely open (w/ handle) (in.) Y
70-1/2
69-7/8
69
24-3/8
29-3/4
31-1/4
43-3/8
35-3/4
44-5/8
68
16-1/8
44-3/4
46-1/4
A
H K
X
Y
G
D
E
F
B C
I
J
Dimensions (in inches)
Height to top of door (in.) A
Height to top of hinge (in.) B
Height to top of case (in.) C
Case depth without door (in.) D
Case depth less door handle (in.) E
Case depth with door handle (in.) F
Depth with fresh food door open 90˚ (in.) G
Width (in.) H
Width with door open 90˚ with door handle (in.) I
Width with doors open fully (in.) J
Min distance between side of case and wall, in
either direction, to allow doors to open fully (in.) K
Depth with FZ door completely open (w/o handle) (in.) X
Depth with FZ door completely open (w/ handle) (in.) Y
70-1/2
69-7/8
69
24-3/8
29-3/4
31-1/4
43-3/8
35-3/4
44-5/8
68
16-1/8
44-3/4
46-1/4
A
H K
X
Y
G
D
E
F
B C
I
J
Dimensions (in inches)


