Quick Specs

C2Y486SDLSS
GE Café
™
Series 48" Dual-Fuel Professional Range with 6 Burners and Griddle (Natural Gas)
DIMENSIONS AND INSTALLATION INFORMATION (IN INCHES)
All GE Appliances ranges are equipped
with an Anti-Tip device. The installation
of this device is an important, required
step in the installation of the range.
Listed by
Underwriters
Laboratories
For answers to your GE Appliances product questions, visit our
website at geappliances.com or call GE Answer Center
®
Service,
800.626.2000.
ELECTRICAL REQUIREMENTS: Ranges must
be hooked up to a 208/240V, 60Hz properly
grounded dedicated circuit protected by a 50-amp
circuit breaker or time-delay fuse.
GAS SUPPLY: The natural gas models are
designed to operate at 5" water column pressure.
For proper operation, the pressure of the natural
gas supplied to the regulator must be between
7" and 13" water column.
The LP models are designed to operate at 10"
water column pressure. For proper operation, the
pressure of the LP gas supplied to the regulator
must be between 11" and 13" water column.
OPTIONAL BACKSPLASH ACCESSORIES:
The range requires a 12" minimum clearance
to a vertical combustible surface at the rear. A
backsplash is required for installations with less
than 12" clearance. The following backsplash
accessories are available, or a custom, non-
combustible backsplash can be used.
Order one with a 48"-wide range backsplash
UXADJB48PSS – 30"-36" adjustable-height
backsplash with warming shelf
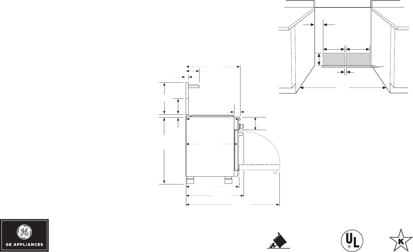
Universal Utility Locations
8"
16"14"
48"
2"
6 1/2"
G/E G/E
2"
10-1/2"
1-1/2"
12"
28-3/4" to
Beveled
Edge of Control
Panel Bullnose
27-1/2" to
Beveled Edge
- Maximum
Adjacent
Cabinet Depth
for
Flush
Installation
13/16"
30-36"
3-3/16"
Control Panel
Depth
28-1/4"
to Front of
Door
48-1/4"
with Oven
Door Open
30-3/4"
to Front of
Knobs and Handle
35-1/4"
to
36-3/4"
7" Control
Panel Height
28-7/8"
to Front
Edge
Optional
Backsplash
Accessories
SIDE VIEW WITH BACKSPLASH
UNIVERSAL UTILITY LOCATIONS



