Architect and Engineering Manual

19
ZONELINE SERIES THERMOSTAT MODEL TYPE FUNCTION LOW-VOLTAGE CONDUCTORS
RAK149F2 Digital-Two Speed Fan
Single-Stage
Cooling
and Heating
6
AZ45 RAK149P2 Digital Programmable-One Speed Fan 5
RAK180W1
Digital-Energy Management
Occupancy Sensing and Makeup Air
Wireless or 2 for power
RAK149F2 Digital-Two Speed Fan
Single-Stage
Cooling
and Two-Stage
Heating
7
AZ65 RAK149P2 Digital Programmable-One Speed Fan 6
RAK180W1
Digital-Energy Management
Occupancy Sensing and Makeup Air
Wireless or 2 for power
FOR REMOTE THERMOSTAT OPERATION FOLLOW THE STEPS BELOW
*
:
1. Turn on the unit and ensure it is working properly BEFORE proceeding.
2. Unplug the unit or disconnect power and remove the room cover.
3. Connect the thermostat wiring per the appropriate diagram/colors for your model.
4. Plug the unit back in or reconnect power.
5. With the unit in the "off" mode, press the Aux Set button once. The letters AU will appear in the display.
6. Press the mode button until the number “6” appears in the left hand digit.
7. Press the + button once so the top half of the right hand digit is lit or press + a second time so the digit shows A.
8. Press the Aux Set button to exit the setup function.
9. Replace the room cover.
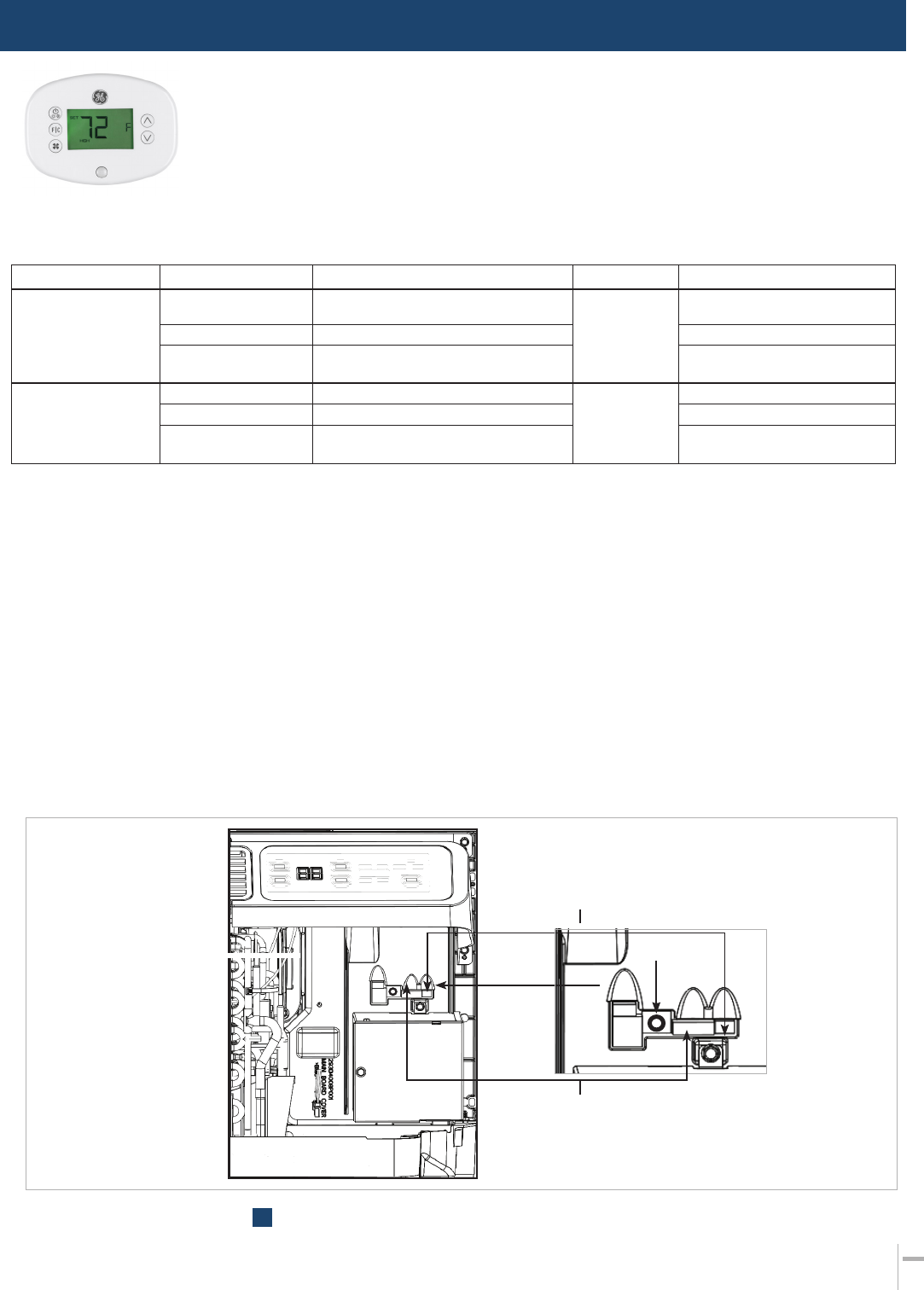
*Thermostat wiring connector is shipped with each unit – located in basepan area below control box.
Thermostat wire size up to 60 ft AWG20, up to 66 ft AWG18.
See pages 14–15 for full instructions on using the Auxiliary Controls Feature.
AUXILIARY CONNECTOR DIAGRAM
RAK180W1
ENERGY MANAGEMENT/
MAKEUP AIR THERMOSTAT
Red Aux
Set Button
External Fan/CDC
Connector Socket
Remote Thermostat
Connector Socket
GE Appliances also offers the RAK180W1 universal thermostat that offers occupancy sensing
energy management.
This thermostat is set up for two stage heating systems (AZ65) out of the box, but also works
on single stage heating systems (AZ45) with changes to the thermostat configuration settings.
The energy management setup can work on a room by room basis or it can be upgraded with
a network controller for full site management.
Command control for the unit is always wireless and power options are for battery and/or two
wire power connection from the Zoneline.
REMOTE THERMOSTAT CONTROL SELECTION CHART FOR ZONELINE®
PACKED TERMINAL UNITS
ARCHITECTS & ENGINEERS DATA MANUAL AZ45/AZ65 SERIES










