Architect and Engineering Manual

34
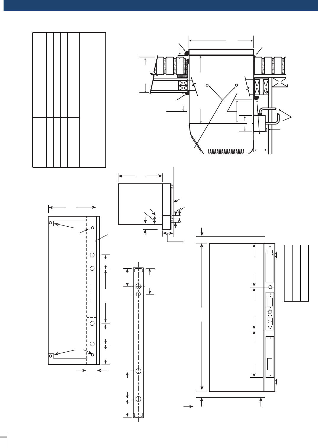
RAB71B/78B WALL SLEEVE INSTALLATION - RAK204 SERIES SUB-BASE CONNECTED
Example: frame and brick veneer - dimensional data and comments
are also applicable to other types of construction
TOP VIEW
Manufacturer Required
Minimum Installation Clearance
1/4" (See note 1)
3" Min. (5" MAX.)
2-3/8" Minimum
0" Minimum 2" Recommended
See pages 39–41 for ducted application.
Dimension
A
B
C
D
NOTE:
1. FOR OUTSIDE FLUSH MOUNTING SEE PAGE 32 FOR
  FLASHING INSTALLATION.
2-3/8"
MIN.
FINISHED
INTERIOR
WALL
LEVELING SCREW
LEVELING SCREW
RAB71B 13-3/4"
RAB78B 14"
5.15" 7.70"
18.86" 1.5"
5.15" 7.70"
10.30"
8.80"
BACK VIEW
FRONT VIEW
42"
D
D
C
SEE NOTE
LEFT SIDE
INTERIOR
ADJACENT
WALL
12-3/4" 12-7/8" 13"
LEVELING SCREW
KNOCKOUT SIZE
LARGE 1-1/8" DIA.
SMALL 7/8" DIA.
KNOCKOUTS
(ENCLOSURE)
4 REAR; 4 BOTTOM
*SHOWN WITH ACCESS COVERS REMOVED.
NOTE: CAUTION - REMOVE KNOCKOUTS FROM INSIDE OUT.
SIDE VIEW
WITH WALL
Sleeve SHOWN
IN PLACE
FINISHED FLOOR
3" MIN.
ADJUSTABLE
TO 5"
1-5/16"
2-3/8"
INTERIOR
WALL
RAB71B 16"
RAB78B 16"
7/ 8 "
1-1/2"
FINISHED FLOOR
RAB71B 16"
RAB78B 16"
SIDE VIEW
MAX. WALL THICKNESS
11-1/8"
MOUNTING SCREWS
AND HOLES BY
INSTALLER
LEVELING SCREWS
(2) SUB-BASE BODY
(2) SIDE EXTENSIONS
CONDUIT ENTRY
(ALTERNATES)
CAULK*
ROOM
CABINET
C
A
B
CAULK*
3-11/16"
2-3/8" MIN. Sleeve
EDGE TO FINISHED
 WALL
13-3/4"
CAULK*
*Caulk around 
perimeter of 
wall sleeve 
all four sides 
where it joins 
the building 
- Interior and 
Exterior.
RECOMMEND 2" TO
INTERIOR ADJACENT
WALL BOTH SIDES.
WALL SLEEVE INSTALLATION DATA (CONTINUED)










