Architect and Engineering Manual

29
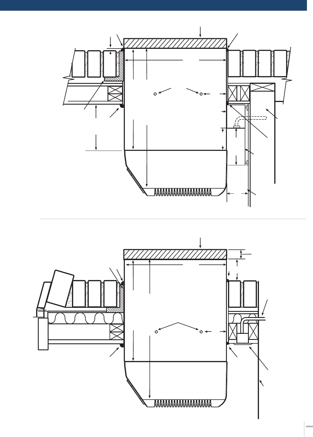
WALL SECTION – DETAILED SIDE VIEW
Frame and Brick Veneer Installation
CORD-SET CONNECTED
CAULK*
SUB-BASE CONNECTED
CAULK*
STEEL LINTEL
RAB71B 13-3/4"
RAB78B 14"
20-13/16" (RAB71B)
21-1/8" (RAB78B)
ROOM
CABINET
2" MIN.
MOUNTING SCREWS
BY INSTALLER
RAB71B 16"
RAB78B 16"
WALL Sleeve
OUTDOOR
GRILLE
CAULK*
CAULK*
1/4"
MIN.
RAG60 1/4"
RAG61, 62, 63 1-3/8"
RAG67 1-1/4"
POWER SUPPLY
CONDUIT
WALL RECEPTACLE
(BY OTHERS)
FINISHED FLOOR
OR TOP OF
CARPET
*Caulk around perimeter of wall sleeve all four sides
where it joins the building - Interior and Exterior.
CAULK*
1/4"
CAULK*
LINTEL
RAB71B 13-3/4"
RAB78B 14"
20-13/16" (RAB71B)
21-1/8" (RAB78B)
ROOM
CABINET
2" MIN.
MOUNTING SCREWS
BY INSTALLER
RAB71B 16"
RAB78B 16"
WALL Sleeve
OUTDOOR
GRILLE
SIDE CHANNEL
3" MIN.
5" MAX.
FINISHED FLOOR
OR TOP OF
CARPET
SUB-BASE
(RAK204)
CAULK*
POWER SUPPLY CONDUIT
(ALTERNATE ENTRY)
3-11/16"
*Caulk around
perimeter of
wall sleeve
all four sides
where it joins
the building
- Interior and
Exterior.
2-3/8"
Min.
2-3/8"
WALL SLEEVE INSTALLATION DATA (CONTINUED)










