User's Manual

Installation
F-60 Operation and Maintenance Manual
2-2
© GBC Pro-Tech 1998 July
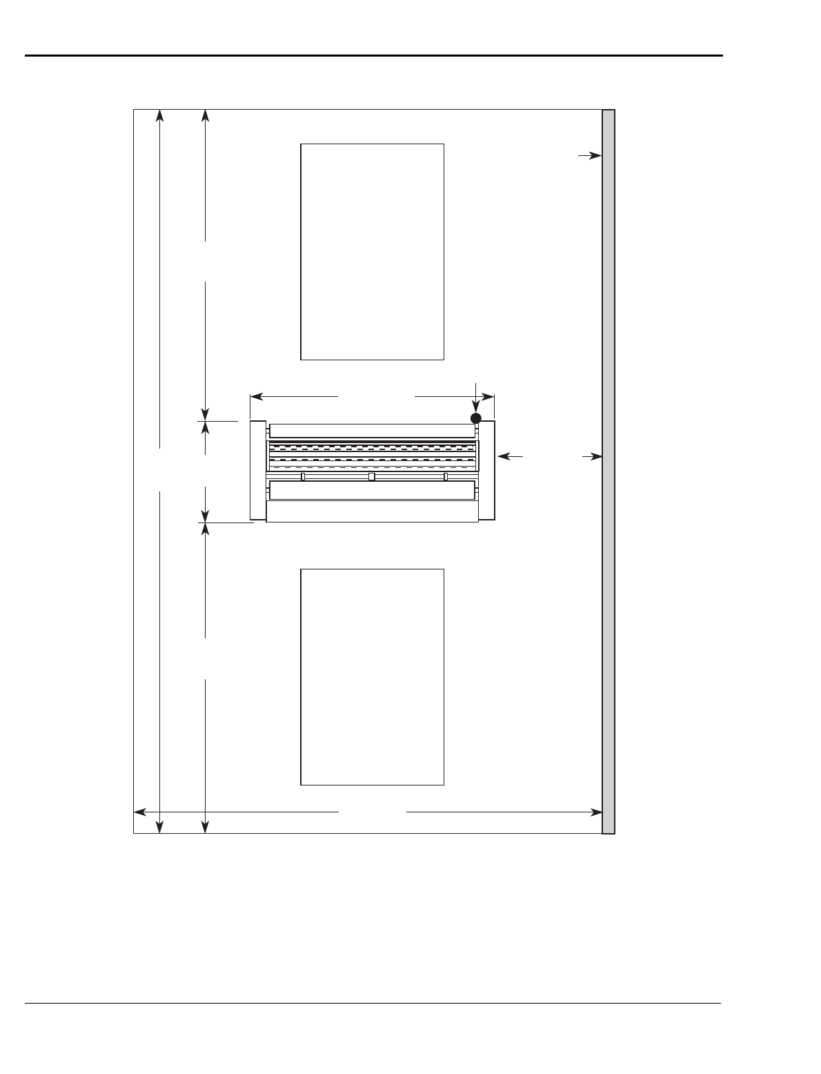
Figure 2-1: Laminator Space Requirements
78" (~2 m)
3' (~1 m)
Wall
4' x 6' (~1.22 m x 2 m)
Work Table
on Wheels
Table Height
35-3/4"
(~.94 - .95 m)
30"
(~.76 m)
8'6-1/2"
(~2.6 m)
8'6-1/2"
(~2.6 m)
Rear
Front
20'
(~.6 m)
4' x 6' (~1.22 m x 2 m)
Work Table
on Wheels
Table Height
35-3/4"
(~.94 - .95 m)
Electrical
Supply
13' (~4 m)










