Installation Guide

C. INSTALL HANDLESET BOTTOM SCREW
Insert bottom screw through washer and into bottom hole. Tighten firmly.
C. INSTALE EL TORNILLO INFERIOR DEL JUEGO DE MANIJAS
Inserte el tornillo inferior a través de la arandela en el orificio inferior. Apriete firmemente.
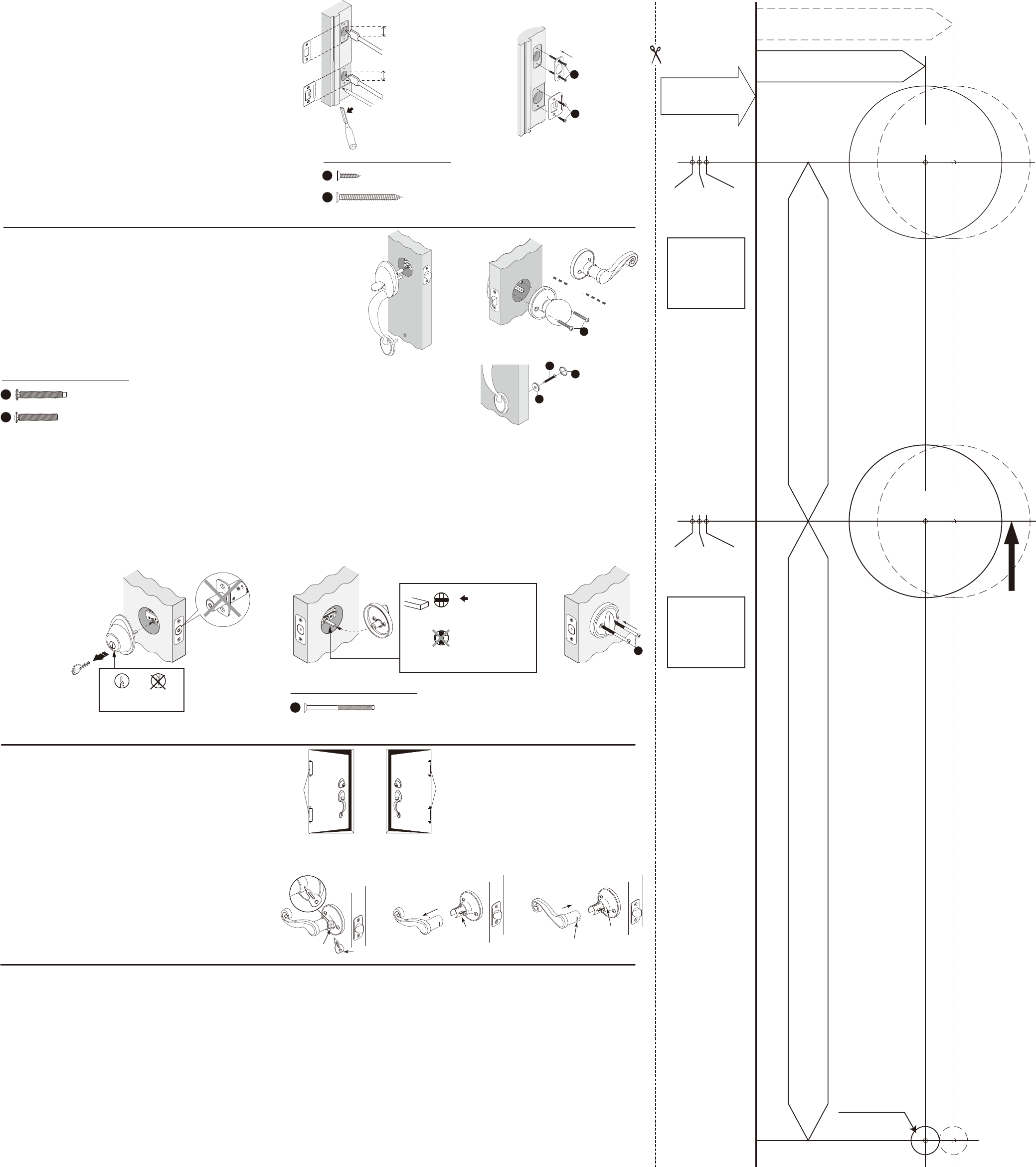
MARK HEIGHT 36 in. (914 mm) FROM FLOOR TO CENTER
MARQUE A UNA ALTURA DE 914 mm (36 pulg) DESDE EL PISO AL CENTRO
1-3/4 in. 1-9/16 in. 1-3/8 in.
45 mm 40 mm 35 mm
Fit here on door edge
Fije aquí en el borde
de la puerta
2. INSTALLATION OF LOCKSET
2. INSTALACIÓN DE CERRADURAS
Drill 1 in. (25 mm)
hole at center of
door edge.
Taladre un orificio
de 25 mm (1 pulg)
al centro del borde
de la puerta.
CENTER TO CENTER 5 in. (127 mm)
DE CENTRO A CENTRO 127 mm (5 pulg)
CENTER TO CENTER 8-5/8 in. (219 mm)
DE CENTRO A CENTRO 219 mm (8-5/8 pulg)
ø2-1/8 in.
ø 54 mm
ø2-1/8 in.
ø 54 mm
ø3/8 in.
ø10 mm
Backset 2-3/8 in. (60 mm)
Seguro de 60 mm (2-3/8 pulg)
Backset 2-3/4 in. (70 mm)
Seguro de 70 mm (2-3/4 pulg)
a. Drill two 1 in. (25 mm) holes, 1-1/8 in. (28 mm) deep in the door jamb.
b. Use strike plate as a pattern for mortise and pilot holes.
c. Chisel 1/8 in. (3 mm) deep. Strike plate should fit flush.
d. Install strike and tighten screws.
a. Taladre dos orificios de 25 mm (1 pulg), de 28 mm (1-1/8 pulg) de profundidad, en el
marco interior para puerta.
b. Use la placa del cerrojo como diseño para la mortaja y los orificios guía.
c. Cincel de 3 mm (1/8 pulg) de profundidad. La placa del cerrojo debe encajar al ras.
d. Instale el cerradero y apriete los tornillos.
D. PREPARE LA JAMBA DE LA PUERTA E INSTALE LA PLACA DEL CERROJO
D. PREPARE DOOR JAMB AND INSTALL STRIKE PLATE
Place exterior handle with stems and square spindle into latch as show. Press tightly against door face.
Pase el husillo cuadrado y los vástagos de la manija exterior por los agujeros indicados en el pestillo,
como se ve aquí. Presione hasta que quede a ras con la superficie de la puerta.
A. INSTALE EL MECANISMO DE LA MANIJA EXTERIOR
A. INSTALL EXTERIOR HANDLE MECHANISM
After exterior handle is in position, install interior knob/lever and tighten screws.
Cuando la palanca exterior esté en posición, instale la perilla/palanca interior y apriete los tornillos.
B. INSTALE LA PERILLA/PALANCA INTERIOR
B. INSTALL INSIDE KNOB/LEVER
A
C
d
Hardware Used/Aditamentos utilizados
Q
3/4 in. (19 mm)
Strike
screws Qty. 2
Tornillos para
cerrojo
de 19 mm (3/4 pulg) Cantidad 2
Hardware Used/Aditamentos utilizados
Hardware Used/Aditamentos utilizados
Q
R
P
L
K
N
a. EXTERIOR ASSEMBLY : Align exterior torque blade K,L with cross drive in deadbolt latch. Be sure latch is in the
retracted position and exterior torque blade is inserted horizontally.
b. INTERIOR ASSEMBLY :
b-1. Slide interior coverplate onto torque blade.
b-2. Insert two mounting machine screws through holes in coverplate to engage threaded holes of exterior cylinder and tighten.
a. ENSAMBLE EXTERIOR: Alinee la cuchilla de torsión exterior con el accionamiento en cruz del pestillo de la cerradura y el eje
cuadrado con el orificio inferior del pestillo, como se muestra. Asegúrese de que la cuchilla de torsión exterior se inserte
horizontalmente.
b. ENSAMBLE INTERIOR:
b-1. Deslice la placa de cubierta interior sobre la cuchilla de torsión.
b-2. Inserte dos tornillos de montaje para metales a través de los orificios de la placa de cubierta para que entren en los
orificios roscados del cilindro exterior y apriete.
C. INSTALL DEADBOLT TRIM
C. INSTALE EL REBORDE DE LA CERRADURA
CORRECT
CORRECTO
WRONG
INCORRECTO
1-1/2 in. (38 mm) Knob/Lever screws
Qty. 2
Tornillos de la perilla/palanca de 38 mm (1-1/2 pulg)
Cantidad 2
O
B
OR O
O
3. HOW TO CHANGE LEVER HANDING
3. CÓMO CAMBIAR LA COLOCACIÓN DE LA PALANCA
1 in. (25 mm) hole
1-1/8 in. (28 mm) deep
Orificio de 25 mm (1 pulg)
28 mm (1-1/8 pulg) de profundidad
1 in. (25 mm) hole
1-1/8 in. (28 mm) deep
Orificio de 25 mm (1 pulg)
28 mm (1-1/8 pulg) de profundidad
Outline
Contorno
a
b
c
Chisel 1/8 in. (3 mm) deep
Cincel de 3 mm (1/8 pulg) de profundidad
1-3/4 in. 1-9/16 in. 1-3/8 in.
45 mm 40 mm 35 mm
Drill 1 in. (25 mm)
hole at center of
door edge.
Taladre un orificio
de 25 mm (1 pulg)
al centro del borde
de la puerta.
PRECAUCIÓN: Retire la
llave antes de la instalación.
WARRANTY/GARANTÍA
Limited Lifetime Warranty
The Manufacturer extends a Limited Lifetime Mechanical and Finish Warranty to the original “User” of this Product against defects in materials and workmanship as long as the User occupies the
residential premises upon which the Product was originally installed. Upon return of a defective Product to the Manufacturer, the Manufacturer shall either replace, repair or refund the purchase
price in exchange for the Product. This warranty does not cover abused or misused Products or those Products used in commercial applications. No other warranties, express or implied are made
with respect to the Product including but not limited to any implied warranty of merchantability or fitness for a particular purpose. The Manufacturer DOES NOT authorize any person to create for it
any obligation or liability in connection with the Product. The Manufacturer maximum liability hereunder limited to the purchase price of the Product, and in no event shall the company be liable for
any consequential, indirect, incidental or special damages of any nature arising from the sale or use of this Product, whether in contract, tort, strict liability or otherwise. (For warranty service,
please call 1-877-442-8347, 8:00 a.m. - 8:00 p.m. EST, Monday through Friday)
Note: Should the Product be considered a consumer product it may be covered by the Magnusson Moss Federal Warranty Act, please be advised that: (1) Some states do not allow limitations or
incidental consequential damages on how long an implied warranty lasts so that the above limitations may not fully apply: and (2) This warranty gives specific legal rights and a User may have
other rights which may vary from state to state.
Garantía limitada de por vida
El fabricante extiende una garantía limitada de por vida, mecánica y del acabado, al “usuario” original de este producto, contra defectos de fabricación en el material y en la mano de obra
mientras el usuario ocupe las instalaciones residenciales en las que se instaló originalmente el producto. Cuando se devuelve un producto defectuoso al fabricante, éste deberá reemplazar,
reparar o reembolsar el precio de compra a cambio del producto. Esta garantía no cubre productos que hayan sufrido abuso o mal uso ni aquellos productos usados en aplicaciones comerciales.
No se otorgan otras garantías, expresas o implícitas, con respecto al producto, incluida, entre otras, cualquier garantía implícita de comerciabilidad o idoneidad para cualquier propósito
determinado. El fabricante NO autoriza a ninguna persona para crear una obligación o responsabilidad en conexión con el producto. La máxima responsabilidad del fabricante según la presente
se limita al precio de compra del producto y en ningún caso la empresa será responsable de ningún daño resultante, indirecto, accidental o especial de ninguna naturaleza causado por la venta o
uso de este producto, ya sea contractual, extracontractual, en estricta responsabilidad o de otra manera. (Para servicio de garanía, llame al 1-877-42-8347, de lunes a viernes de 8:00 a.m. a 8:00
p.m., hora estándar del Este)
Nota: Si el producto se considera de consumo, es posible que esté cubierto por la ley federal de garantías Magnuson-Moss, por lo que debe tener presente que: (1) Algunos estados no permiten
limitaciones ni daños resultantes accidentales en cuanto a la duración de una garantía implícita, de modo que las limitaciones anteriores pueden no aplicarse completamente; y (2) esta garantía
otorga derechos legales específicos y el usuario podría tener también otros derechos que varían según el estado.
b-1 b-2
a
Stand at exterior side and face to your door.
a. Your door is a left hand door if hinges are installed to your left.
b. Your door is a right hand door if hinges are installed to your right.
Pull
Jale
catch tool
El llavín
Catch hole
Agujero del retén
Catch hole
Agujero del retén
Insert catch tool
Inserte el llavín
Spindle
Axe
1. 2. 3.
A. BEFORE PROCEEDING: DETERMINE HANDING OF YOUR DOOR
CORRECT
CORRECTO
WRONG
INCORRECTO
CAUTION: Latch bolt must be
retracted during all installation
steps or unit may malfunction.
CAUTION: Please remove
the key before installation.
PRECAUCIÓN: El perno del
pestillo debe retraerse durante
todos los pasos de la
instalación o la unidad podría
no funcionar adecuadamente.
1-1/4 in. (32 mm) Handleset bottom screw
Qty. 1
Tornillo de la parte inferior deljuego de manijas de 32 mm (1-1/4 pulg)
Cantidad 1
N
P
2-19/32 in. (66 mm) Mounting bolts Qty. 2
Pernos de montaje de
66 mm (2-19/32 pulg)
Cantidad
2
Stand at exterior side and face to your door.
a. Su puerta es izquierda si las bisagras se encuentran instaladas de lado
izquierdo.
b. Su puerta es derecha si las bisagras se encuentran instaladas de lado
derecho.
A. ANTES DE CONTINUAR: DETERMINE EL LADO DE LA PUERTA
B. CHANGE LEVER HANDING
The factory default is left handed handleset. Please skip this step if your door is
left hand door or the lever style is a straight lever style lever. This step is only
required for installing to a right hand door. Please take out the other side lever
from the accessory box, and then follow below steps to change lever handing.
B. CAMBIO DE LADO DE LA MANIJA
La configuración de fábrica es izquierda. Por favor haga caso omiso a este paso
si su puerta es izquierda o en caso de que el diseño de la manija sea simétrico.
Este paso es requerido solamente para instalación en puerta derecha. Por favor,
encuentre la otra manija en la caja de accesorios, y siga los siguientes pasos
para cambiar el sentido de la manija.
Exterior
Exterior
Right hand door
Puerta hacia la derecha
Left hand door
Puerta hacia la izquierda
Hinges
Bisagras
Hinges
Bisagras
Hole on lever
Orificio de la palanca
R
2 in. (51 mm) Wood screws Qty. 2
Tornillo
s para madera
de 51 mm (2 pulg) Cantidad 2
TEMPLATE/PLANTILLA
Insert
Inserte
Remove the original lever
Retire la palanca original
Install the other side lever
Instale el otro lado de la palanca
AB14455 Printed in Taiwan/Impreso en Taiwán
Caution:
Make sure the
torque blade insert
in horizontal position.
Precaución:
Asegúrese de que la
cuchilla de torsión
esté insertada en
posición horizontal.


