INSTALLATION AND OPERATION MANUAL GAS FRYER C836-1-35F

Part # 4518632 (02/19/08)Page 4
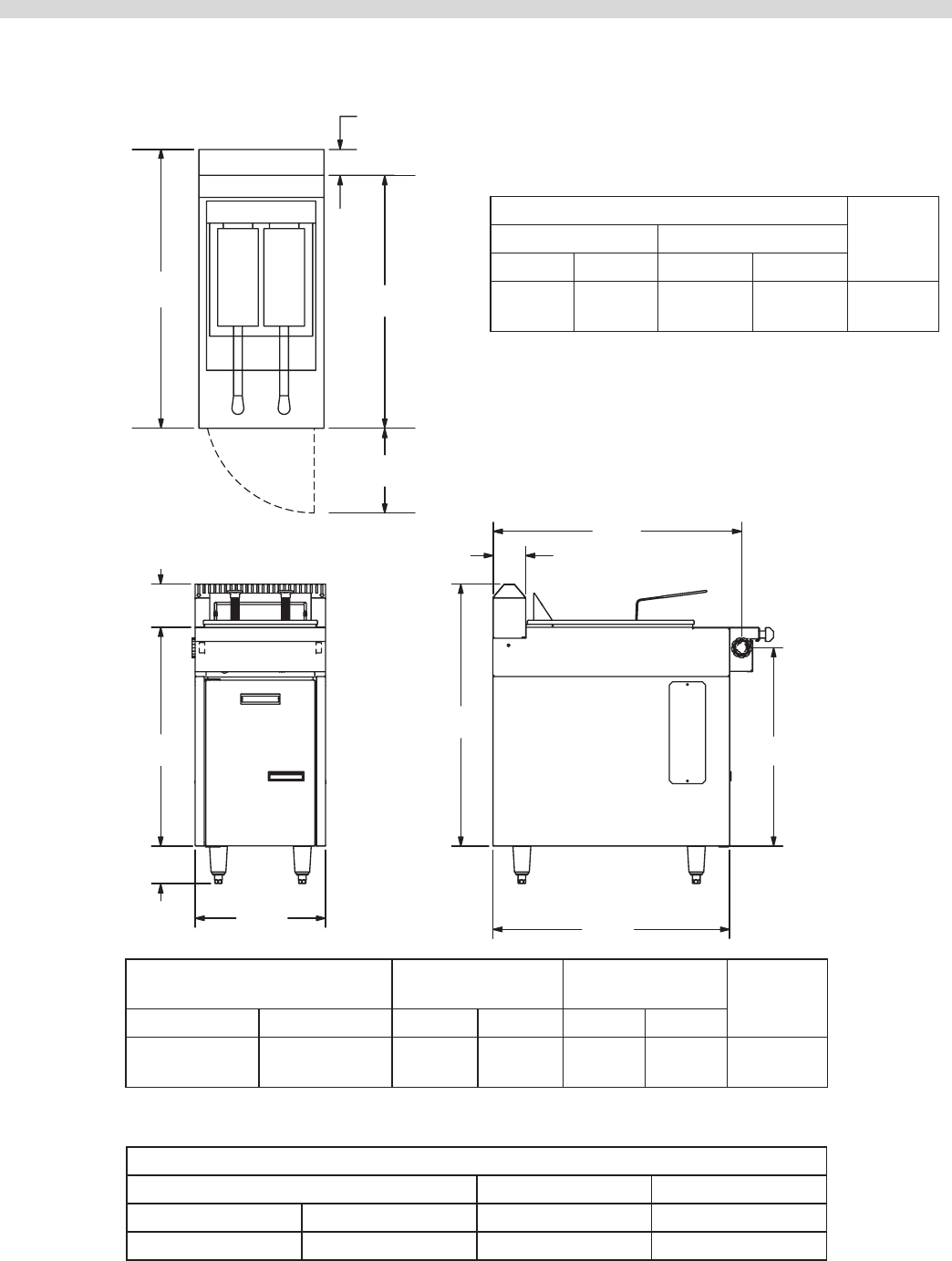
DIMENSIONS AND SPECIFICATIONS, MODEL C836-1-35F
TOTAL INPUT
OPERATING
PRESSURE
ORIFICE
MANIFOLD
PIPE SIZE
Natural Propane NAT PRO NAT PRO
110,000 BTU/Hr
(32.23kW/Hr)
85,000 BTU/Hr
(24.91kW/Hr)
4.0" WC
(10mbar)
9.0" WC
(22mbar)
#51 1.05MM 1-1/4” N.P.T
Gas input ratings shown here are for installations up to 2,000 feet (610mm) above sea level.
Input must be derated for high altitude installations.
FRYING CAPACITY (per hour)
FRENCH FRIES FISH BREADED CHICKEN
Raw to Done Blanched to Done 3oz. (84g), Battered Raw to Done
60lb. (27kg) 80lb. (36kg) 60lb. (27kg) 28lb. (13kg)
CLEARANCES
SHIPPING
WEIGHT
INSTALLATION ENTRY
Sides Rear Crated Uncrated
6"
(152mm)
6"
(152mm)
29-1/4"
(743mm)
18-1/4"
(464mm)
220lb.
(100kg)
34-3/8"
(873mm)
36-1/4"
(921mm)
27-3/8"
(695mm)
32-11/16"
(830mm)
18"
(457mm)
6"
(152mm)
30-1/4"
(768mm)
4-1/2"
(114mm)
6-1/2"
(165mm)
4-1/2"
(114mm)
34"
(864mm)
8-1/2"
(216mm)
37-7/8"
(962mm)