INSTALLATION AND OPERATION MANUAL GAS FRYER C836-1-35F

Pièce nº 4518632 (02/19/08) Page 4
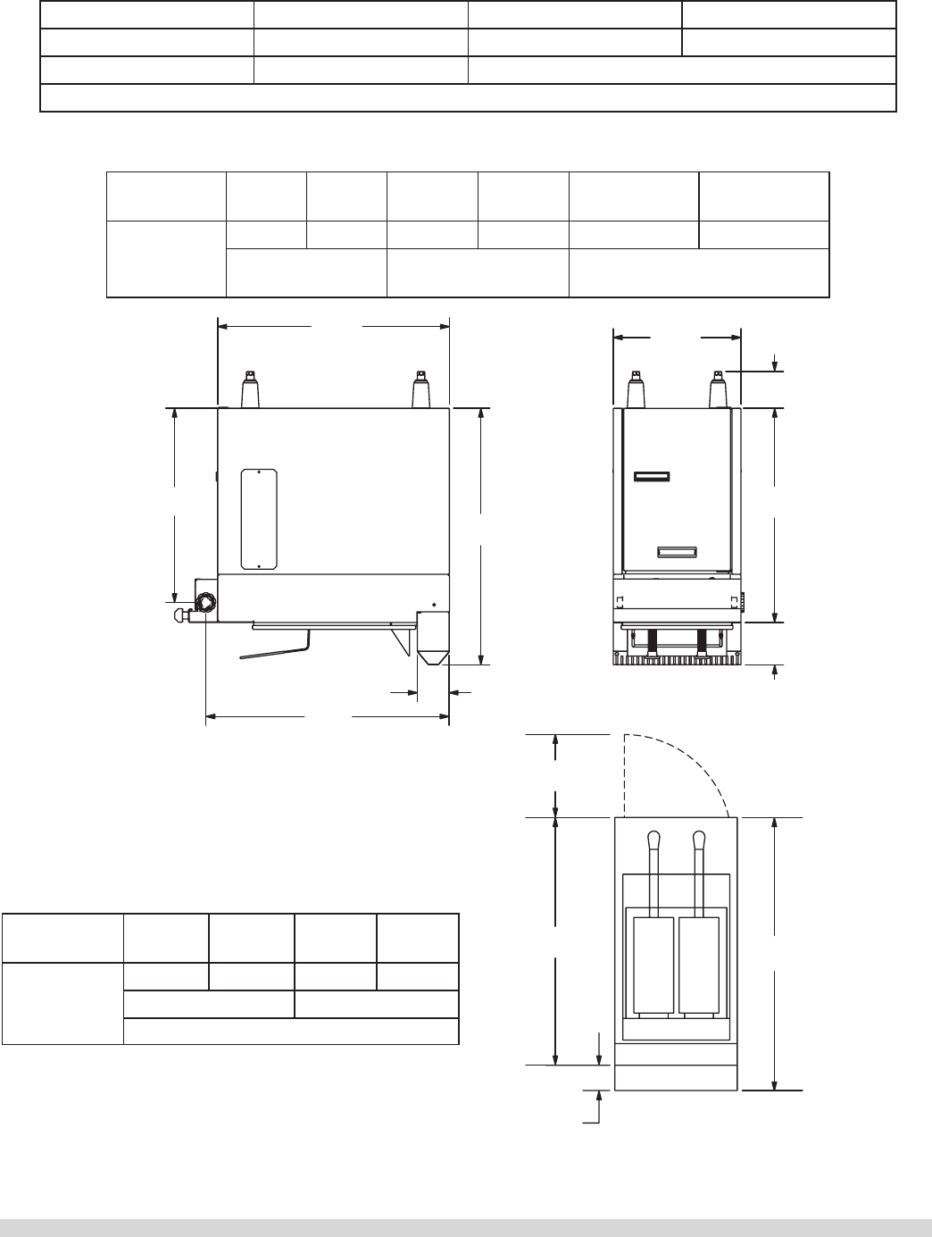
34-3/8"
(873mm)
36-1/4"
(921mm)
27-3/8"
(695mm)
32-11/16"
(830mm)
18"
(457mm)
6"
(152mm)
30-1/4"
(768mm)
4-1/2"
(114mm)
6-1/2"
(165mm)
4-1/2"
(114mm)
34"
(864mm)
8-1/2"
(216mm)
37-7/8"
(962mm)
DIMENSIONS ET SPÉCIFICATIONS, MODÈLE C836-1-35F
DÉBIT CALORIFIQUE TOTAL
PRESSION DE
FONCTIONNEMENT
ORIFICE
DIAMÈTRE
TUYAU
COLLECTEUR
Naturel Propane NAT PRO NAT PRO
110 000 BTU/H
(32,23kW/h)
85 000 BTU/H
(24,91kW/h)
4 po C.E
(10mBars)
9 po C.E.
(22mBars)
#51 1,05MM 1-1/4 po NPT
Les indications pour les entrées de gaz s’appliquent à des installations inférieures à 2 000 pi (610 m) d’altitude
au-dessus du niveau de la mer. Le débit calori que doit être réduit pour les installations en haute altitude.
CAPACITÉ DE FRITURE (par heure)
FRITES POISSON POULET PANÉ
Crues à cuites Blanchies à cuites 3oz. (84 g), en pâte à frire Crues à cuites
60lb. (27kg) 80lb. (36kg) 60lb. (27kg) 28lb. (13kg)
DÉGAGEMENTS
POIDS
D’EXPÉDITION
INSTALLATION ENTRÉE
Côtés Arrière En caisse Déballé
6"
(152mm)
6"
(152mm)
29-1/4"
(743mm)
18-1/4"
(464mm)
220lb.
(100kg)