Manual

7-4
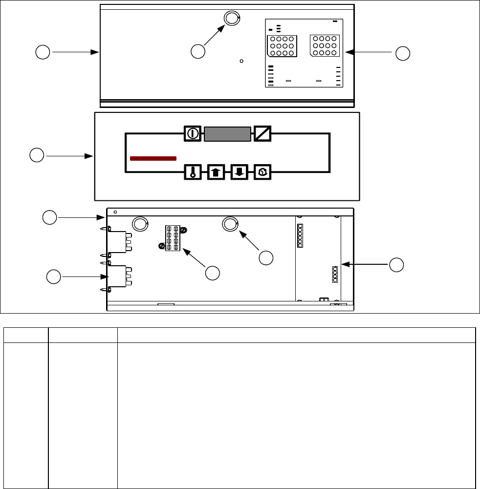
7.4 Controller and Component Box Assemblies
GND GND
SOUND
1
2
GND
2
1
3
4
6
7
912
10
118
5
1
3
2
6
4
5
9
7
8
12
10
11
J3
Frymaster
- - - -
C
F
1
2
4
5
7
3
3
8
GND
3
J1
GND
V1D
PWR
ALRM
V1S
GND
V2D
PWR
A D
A S
V2S
FBR18
Component Box
6
FBRA18
Component Box
Controller
ITEM PART # COMPONENT
1 824-0396 Control Box (used on FBR18 only)
2 806-3398 Interface Board (used on FBR18 only)
* 809-0394 Spacer, Interface Board Standoff, 4mm x 6mm (used on FBR18 only)
3 810-0045 Bushing, .875-inch (used on FBR18 and FBRA18)
4 806-5303 Controller, Digital (used on FBR18 and FBRA18)
5 806-9414 Control Box Assembly (used on FBRA18 only)
6 806-9592 Interface Board (used on FBRA18 only)
7 807-1683 Relay, 12VDC (used on FBRA18 only)
8 807-0067 Block, 8-pin Terminal
* 807-1241 Spacer, Interface Board Standoff, ⅝-inch (used on FBRA18 only)
* Not illustrated.