Installation & Operation Manual (2019)
Manuals
Brands
Friedrich Manuals
Air Conditioners
Flexible Zone Concealed Ducted Heat Pump Indoor Unit with Precision Inverter® Technology, Fast Pro®, DiamonBlue Advanced Corrosion Protection®, Soft Start Technology, Dry Mode, 3 Fan Speeds, Auto Restart, and Auto Changeover: 18000 BTU Cooling
1
2
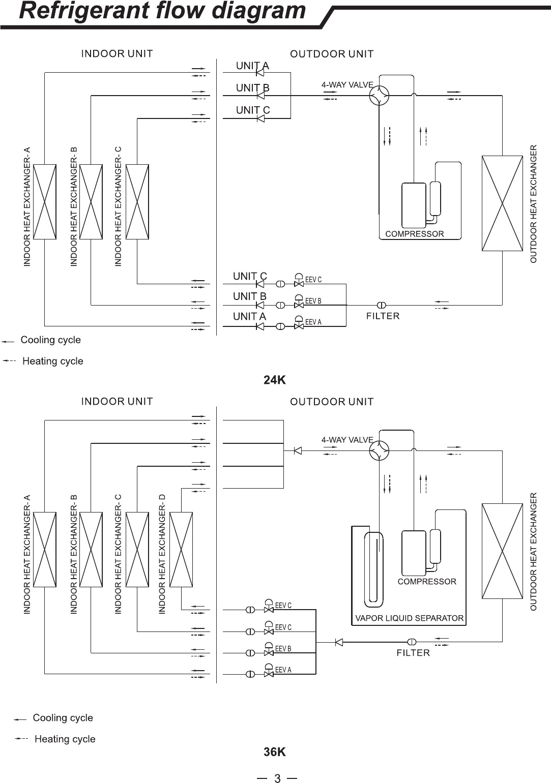
3
4
5
6
7
8
9
10
Table Of Contents
Multi Zone ODU Manual-2007353-B-Spanish 2.pdf
页 1
页 2
页 3
页 4
页 5
页 6
页 7
页 8
页 9
页 10
页 11
页 12
页 13
页 14
页 15
页 16
Multi Zone ODU Manual-2007353-B-French 3.pdf
页 1
页 2
页 3
页 4
页 5
页 6
页 7
页 8
页 9
页 10
页 11
页 12
页 13
页 14
页 15
页 16
1
...
2
3
4
5
6
7
...
...
47