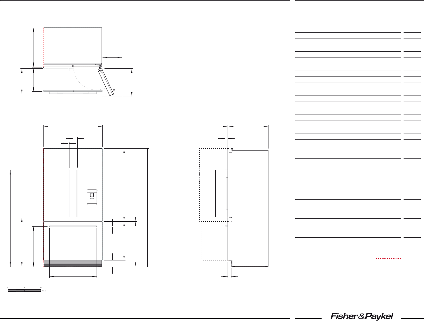
Dimensions Guide

DATA SHEET
36" ACTIVESMART™ BUILT-IN REFRIGERATOR
7357_FP_2015-08-21
DATUM : 
FLOOR (LEVEL)
71 27/2"
A
DATUM : FRONT OF CHASSIS
DATUM : FRONT OF CHASSIS
E
FRONT VIEW
PLAN VIEW
PROFILE VIEW
5 21/2"
B DC
D
WALL
G
H
I
J
K
L
M
N
O
M
Q
R
P
T
S
U
V
F
Model no:
RS36A72U1 (with Stainless Door panels PART NO. RD3672U)
Product Dimensions
in
a Overall height of fridge
71 27/2"
B Overall width of fridge
5 21/2"
c Depth of fridge front panels (excl. handles)
/4"
D Overall depth of fridge (excl. front door panels)
2 /4"
E Height from bottom datum to top of toekick
4"
F Depth of toekick measured from front of door
2"
G Height of bottom drawer panel
2 15/2"
H Height of top door panels
44 7/2"
I Height from bottom datum to top of drawer panel
27 15/2"
J Gap between top and bottom door panels
5/2"
K Height from bottom datum to centre of bottom handle
24 21/2"
L Width of bottom handle
28 5/8"
M Thickness of handles
5/8"
N Height from bottom datum to bottom of top handle
0 /16"
O Height from bottom datum to top of top handle
58 1/16"
P Height of top handles
28 5/8"
Q Distance from centre of fridge to the centre of top handles
2 5/8"
R Depth of handle (measured from front of door)
1 5/8"
S Depth of door (widest opening) measured from front of door
17 5/16"
T Depth of drawer (open) measured from front of drawer, 
including handle
15 /4"
U Depth of drawer (open) measured from front of drawer, 
excluding handle
14 /16"
V Minimum door clearance to adjacent wall (115° – full internal 
access)
11 1/16"
Clearances Dimensions
in
Minimum cabinetry gap clearance from edge of product
5/2"
Overall height of cavity
72"
Overall width of cavity
when adjoining cabinetry cannot share 5/2" door gap
6"
Overall depth of cavity
25"
INDICATES PRODUCT DATUM 
INDICATES MINIMUM CABINETRY CLEARANCES
IMPORTANT NOTE: The product dimensions and specifications apply at the date 
of issue. Under our policy of continuous product improvement, these dimensions 
and specifications may change at any time. Dimensions may vary by ±/2
''. 
Please read the installation manual for detailed information on installing the 
product or visit fisherpaykel.com.



