Data Sheet

DATA SHEET
36" FREESTANDING DUAL FUEL RANGE
Model no:
OR36SDPWGX1 (refer page 2 for metric measurements)
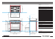
Dimensions
in
a Overall height of range (from floor to cooktop, excluding
grates and backguard)
min 35 7/8''
max 36 1/2''
B Overall width of range
36''
c Depth from front datum to rear of product including
backguard
25 1/4''
d Depth from front datum to rear of chassis
23 7/16''
e Depth from front datum to front of handle
1 7/16''
f Depth from front datum to front of backguard
22 31/32''
g Depth of backguard
2''
h Depth of spacers
3/16''
i Height of backguard from countertop datum
3''
j Height from countertop datum to top of grates
1 3/8''
k Height from countertop datum to top of control panel
1 9/16''
l Height from bottom of chassis to top of backguard
38 3/8''
m Height from bottom of chassis to countertop datum
35 3/8''
n Height from bottom of chassis to bottom of control panel
29 3/8''
o Height from bottom of chassis to top of oven door
28 21/32''
p Height from bottom of chassis to top of storage drawer
10 3/4''
q Height from bottom of chassis to door handle centreline
26 11/16''
r Thickness of handle
29/32''
s Width of handle
30 3/4''
t Width of door
31 7/8''
u Depth of open door to front datum
16 1/16''
v Height of adjustable levelling feet
min 1/2''
max 1 1/8''
Minimum Clearances*
in
Overall width of cavity
min 36''
Overall depth of cavity
max 25 1/4''
Overall height of cavity
min 35 7/8''
max 36 1/2''
* Refer to installation documents for additional cabinetry clearances.
INDICATES PRODUCT DATUM -------------------------------------------
INDICATES CLEARANCES ------------------------------------------------
DATE: 03.09.2015
IMPORTANT NOTE: Throughout this guide, dimensions may vary by ±2mm
(3/32''
). Please read the installation manual for detailed information on
installing the product. www.fisherpaykel.com
DATUM : BOTTOM OF CHASSIS
r
36''
B
36''
B
25 1/4''
c
25 1/4''
A
FRONT VIEW
PLAN VIEW
PROFILE VIEW
e gf
h
c
p
nml
s
ijk
u
v
o
0 5 10 20
inches
35 7/8'' -
36 1/2''
DATUM : FRONT EDGE OF SIDE PANEL
DATUM : FRONT EDGE OF SIDE PANEL
q
dt
u
DATUM :
TOP OF COUNTERTOP


