Ventilation Guide
DATA SHEET
30'' CHIMNEY PYRAMID VENTILATION HOOD
Model no:
HC0PHTX1
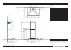
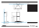
Product Dimensions
in
A Maximum height of rangehood
4 1/16''
B Minimum overall height - recirculating
29 1/8''
C Minimum overall height - ducted
26 /4''
D Overall width of rangehood
29 /4''
E Depth of rangehood chassis
19 11/16''
f Height from bottom datum to top of lower chimney section
25 1/16''
g Height of canopy
4 1/2''
h Height of control panel
2 1/16''
i Width of chimney
12 5/8''
j Depth of chimney including rear bracket
11 7/16''
k Ducting outlet diameter
6''
l Distance from center of ducting outlet to rear datum
/4''
M Rear bracket depth
1/8''
INDICATES PRODUCT DATUM -------------------------------------------
DATE: 10.12.2015
IIMPORTANT NOTE: Throughout this guide, dimensions may vary by ±2mm
(/2''). Please read the installation manual for detailed information on
installing the product. For full installation instructions & specifications visit
fisherpaykel.com
0 5 10 20
inches
29 3/4''
d
29 3/4''
d
43 1/16''
19 11/16''
l
k
e
M
e
A
FRONT VIEW
PLAN VIEW
PROFILE VIEW
h
ij
g
DATUM : REAR OF HOOD
DATUM : REAR OF HOOD
DATUM : BOTTOM OF HOOD
b c f
POWER CORD
LOCATION
19 11/16''




