Installation Guide

27
US
CA
FR
INSTRUCTIONS D’INSTALLATION
• Required when unit is installed over Wall Oven
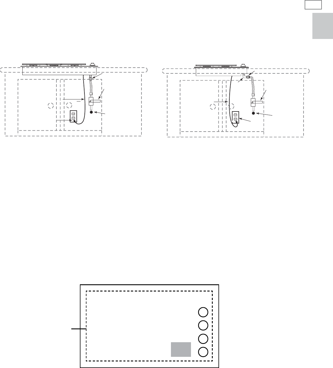
Le robinet d'arrêt
fourni par
l'installateur doit
être facilement
accessible de
l'intérieur du
boîtier
ALIMENTATION EN GAZ
CORDON D'ALIMENTATION
DE 1,2 M/4 PIEDS
ALIMENTATION ÉLECTRIQUE
COMPTOIR
Le robinet d'arrêt
fourni par
l'installateur doit
être facilement
accessible de
l'intérieur du
boîtier
ALIMENTATION EN GAZ
COMPTOIR
CORDON D'ALIMENTATION
DE 1,2 M/4 PIEDS
ALIMENTATION ÉLECTRIQUE
RÉGULATEUR
RÉGULATEUR
Coude à
90
o
fourni*
(CDU/CDV-304
uniquement)
Vue de dessus
AVANT
Châssis
Étiquette
signalétique
*Requis si la table de cuisson est installée au-dessus
d’un four de mur
LES CONNEXIONS D’ALIMENTATION
EN GAZ CDV2304
LES CONNEXIONS D’ALIMENTATION
EN GAZ CDV2365
BESOINS EN ALIMENTATION :
120 V c.a., 60 Hz, courant monophasé
CDV2-365/CDV2-304 : 0,10 A max.
(utilisez un circuit de 15 A minimum)
■
Débranchez toujours le cordon d’alimentation électrique de la prise murale ou coupez le courant avant d’effectuer
l’entretien de cet appareil.
■
Respectez tous les codes et réglementations en vigueur concernant la mise à la terre. S’il n’y en a pas, respectez
la norme ANSI/NFPA No. 70-1990 du National Electrical Code (Code national de l’électricité).
■
Les schémas de câblage sont inclus dans le résumé de réparation, attaché au bas du châssis de la table de cuisson.
■
L’étiquette signalétique est située au bas du châssis de la table de cuisson, vers l’avant du côté droit.