Installation Guide

12
US
CA
INSTALLATION INSTRUCTIONS
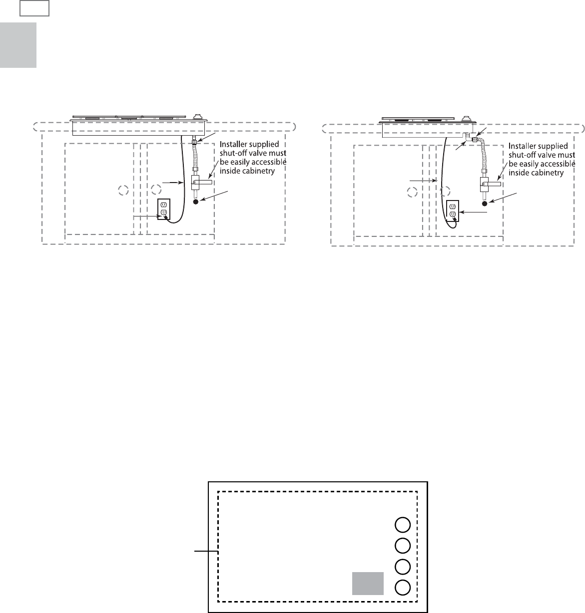
COUNTER TOP
GAS SUPPLY
ELECTRIC SUPPLY
4 FOOT POWER CORD
COUNTER TOP
GAS SUPPLY
ELECTRIC SUPPLY
4 FOOT POWER CORD
90
0
Elbow
supplied*
(CDU/CDV-304
only)
• Required when unit is installed over Wall Oven
REGULATOR
REGULATOR
GAS CONNECTION FOR CDV2-365 models
GAS CONNECTION FOR CDV2-304 models
POWER REQUIREMENTS:
120 VAC, 60 Hz., single phase.
CDV2-365 & CDV2-304 models: 0.10 Amp. Max.
(Use 15 Amp. circuit minimum)
■
Always disconnect the electric supply cord from the wall outlet or turn off the electricity at the service disconnect
before servicing this appliance.
■
Observe all governing codes and ordinances when grounding, in the absence of which, observe National Electrical
Code ANSI/NFPA No. 70-1990.
■
Wiring diagrams are included in the service summary, attached to the bottom of the cooktop chassis.
■
The rating label is located on the bottom of the cooktop chassis, towards the front on the right-hand side.
Top view
FRONT
Chassis
Rating label